EasyManua.ls Logo

Trane HORIZON ABDA - Low Refrigerant Temperature Cutout (LRTC) and Limit; Figure 27. Refrigerant limiting function operation

Trane HORIZON ABDA
92 pages
Print Icon
To Next Page IconTo Next Page
To Next Page IconTo Next Page
To Previous Page IconTo Previous Page
To Previous Page IconTo Previous Page
Loading...
77
To restore service, the diagnostic must be manually reset.
The factory setting of 36°F should not be changed, however
it is accessible from within the service settings: field startup
group menu if the chiller selection requires a new setpoint
for stable operation.
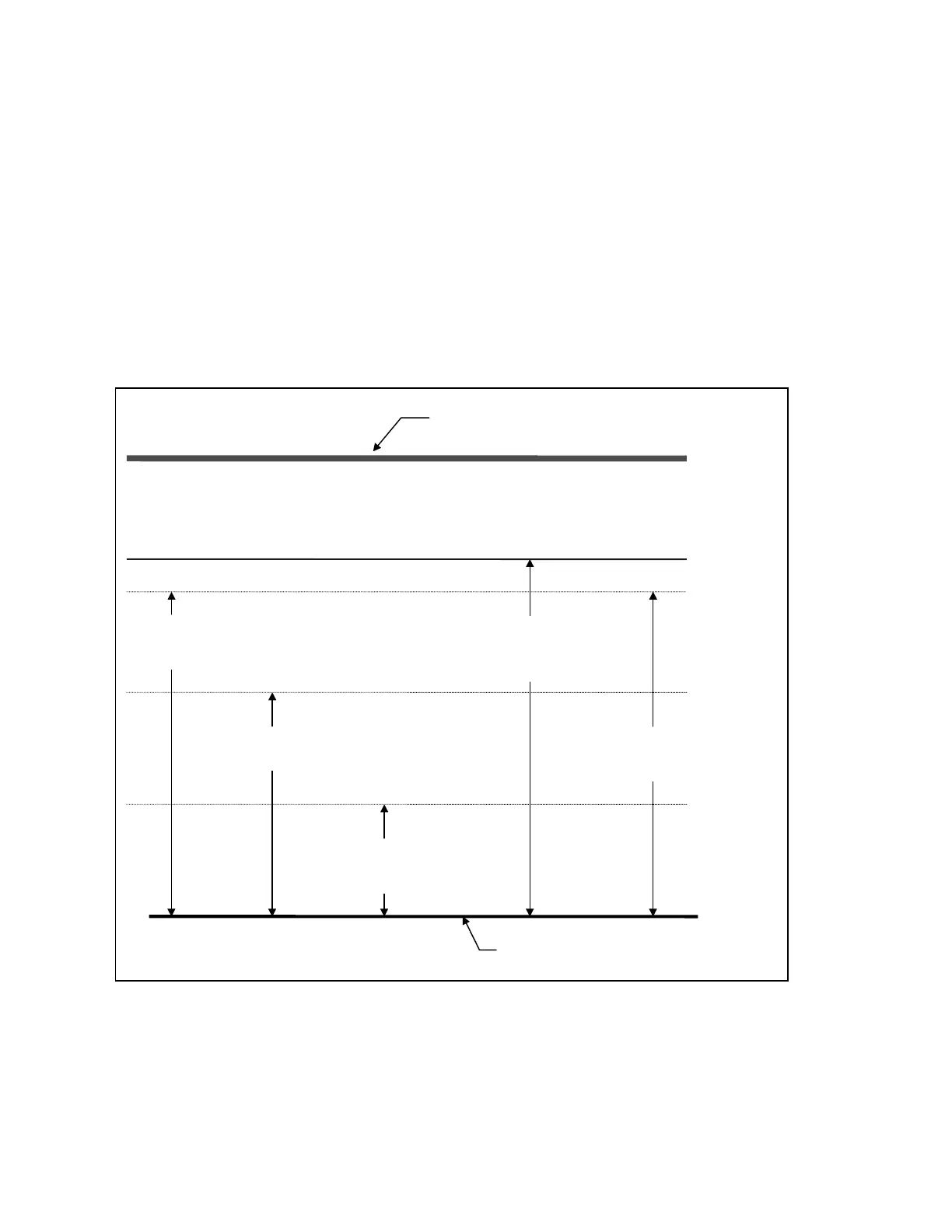
An example of how the refrigerant limiting function
operates is illustrated in Figure 27. Assume the LRTC is set
to 36°F.
Limit loading occurs at 38.5°F
Hold loading at 38°F
Unload occurs at 37.5°FLimit loading : 2.5°F above trip
setting (that is 38.5°F)
Cutout will occur at 36°F
Low Refrigerant Temperature Cutout (LRTC)
and Limit
The low refrigerant temperature cutout (LRTC) limit is used
to prevent a chiller shutdown when the evaporator
refrigerant temperature approaches the cutout setpoint.
This is accomplished by limiting loading, holding or
unloading in sequence to prevent the refrigerant
temperature from reaching the cutout setpoint. If the
limiting action is successful, the chiller will stay in limit until
the refrigerant water temperature recovers. If the limiting
actions do not prevent a continued decline in refrigerant
temperature, the low temperature cutout point will be
reached and trip the chiller off. An MMR diagnostic then
locks out chiller operation.
Figure 27. Refrigerant limiting function operation
Limit loading : 2.5°F above
trip setting (that is 38.5°F)
Evaporator Limit
Chilled water setpoint
2.7°F minimum differential
between Leaving Water
Temperature setpoint and
LRTC setpoint (that is 38.7°F)
Evaporator Refrigerant
Temperature Cutout setpoint;
integrate to trip (that is 36°F)
Unload: 1.5°F above
trip setting (that is
37.5°F)
Hold : 2°F above trip
setting (that is 38°F)

Related product manuals