EasyManua.ls Logo

Trane HUV - Dimensional Data HUV-Ducted Front Discharge

Trane HUV
132 pages
Print Icon
To Next Page IconTo Next Page
To Next Page IconTo Next Page
To Previous Page IconTo Previous Page
To Previous Page IconTo Previous Page
Loading...
106 UV-PRC001-EN
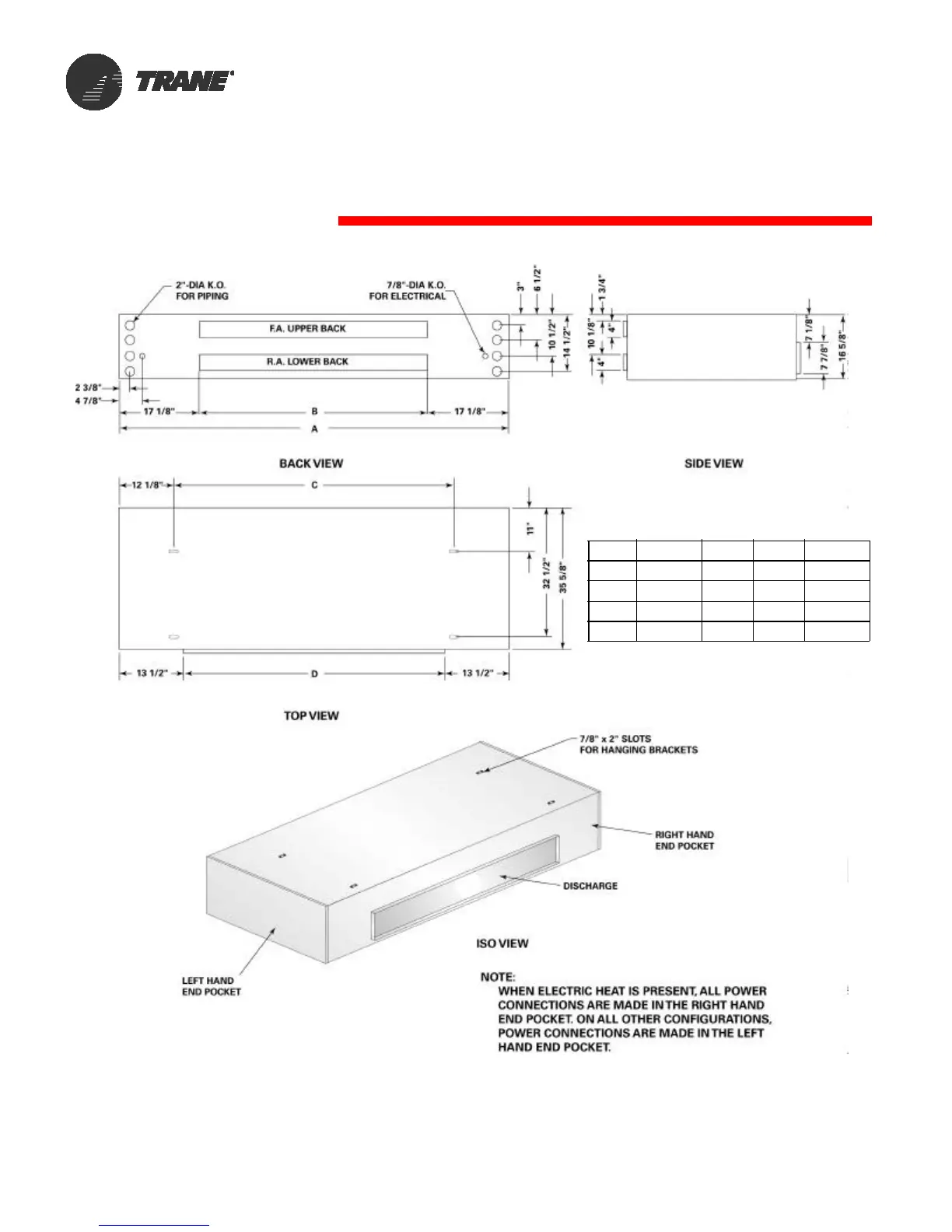
Dimensional Data
HUV-Ducted Front Discharge
Size A B C D
075 70 1/4" 36" 46" 43 1/4"
100 82 1/4" 48" 58" 55 1/4"
125 94 1/4" 60" 70" 67 1/4"
150 106 1/4" 72" 82" 79 1/4"
Unit Sizes 075-150

Other manuals for Trane HUV

Related product manuals