EasyManua.ls Logo

Trane LWHA - Dimension Data

Trane LWHA
24 pages
Print Icon
To Next Page IconTo Next Page
To Next Page IconTo Next Page
To Previous Page IconTo Previous Page
To Previous Page IconTo Previous Page
Loading...
TRANE
®
9
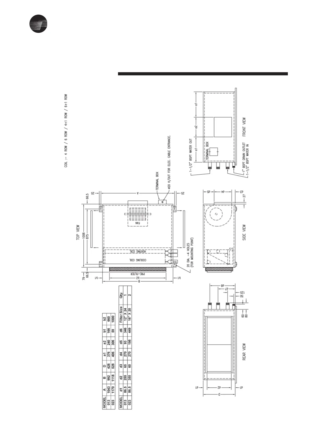
Dimension Data
Low Height Air Handling Unit
Double Wall - Direct Driven
LWHA 013/023 - LH Coil

Related product manuals