EasyManua.ls Logo

Trane LWHA - Page 14

Trane LWHA
24 pages
To Next Page IconTo Next Page
To Next Page IconTo Next Page
To Previous Page IconTo Previous Page
To Previous Page IconTo Previous Page
Loading...
TRANE
®
11
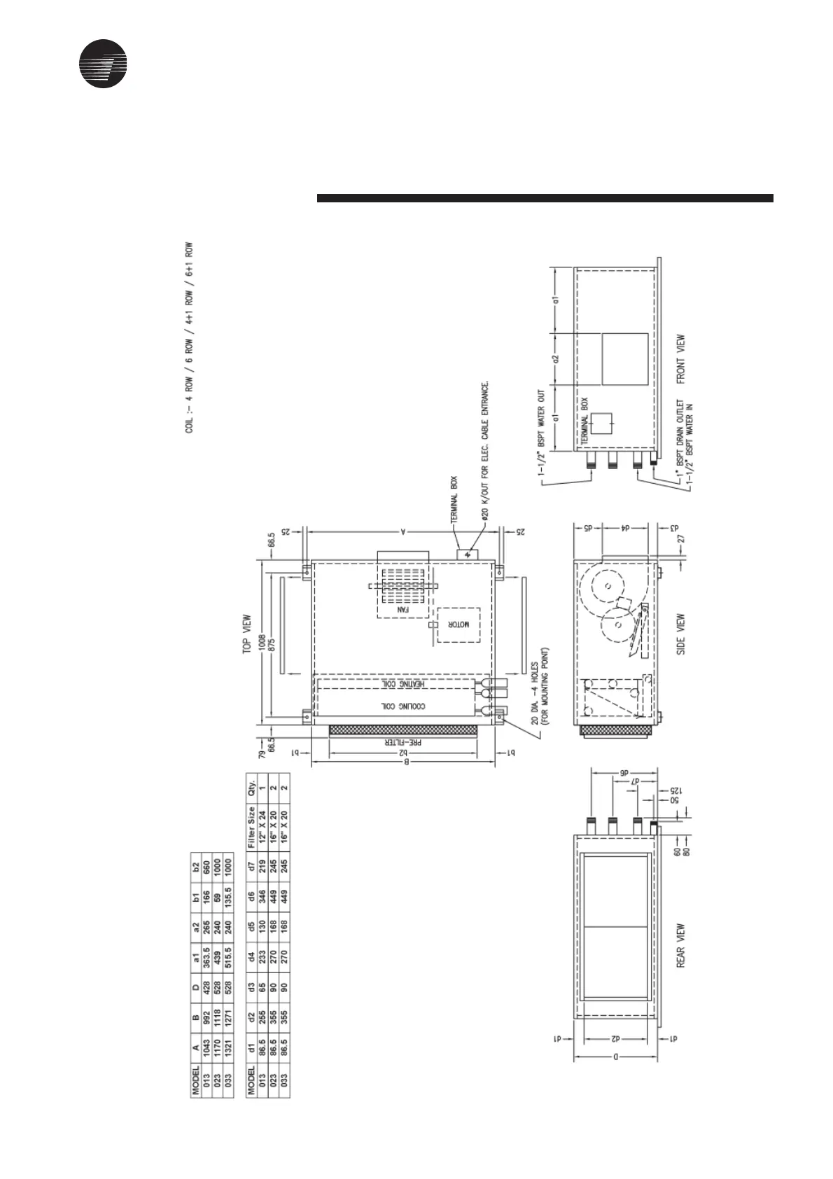
Dimension Data
Low Height Air Handling Unit
Double Wall - Belt Driven
LWHA 013/023/033 - LH Coil

Related product manuals