EasyManua.ls Logo

Trane RTAA-155 - Page 64

Trane RTAA-155
140 pages
Print Icon
To Next Page IconTo Next Page
To Next Page IconTo Next Page
To Previous Page IconTo Previous Page
To Previous Page IconTo Previous Page
Loading...
64
RTAA-IOM-3
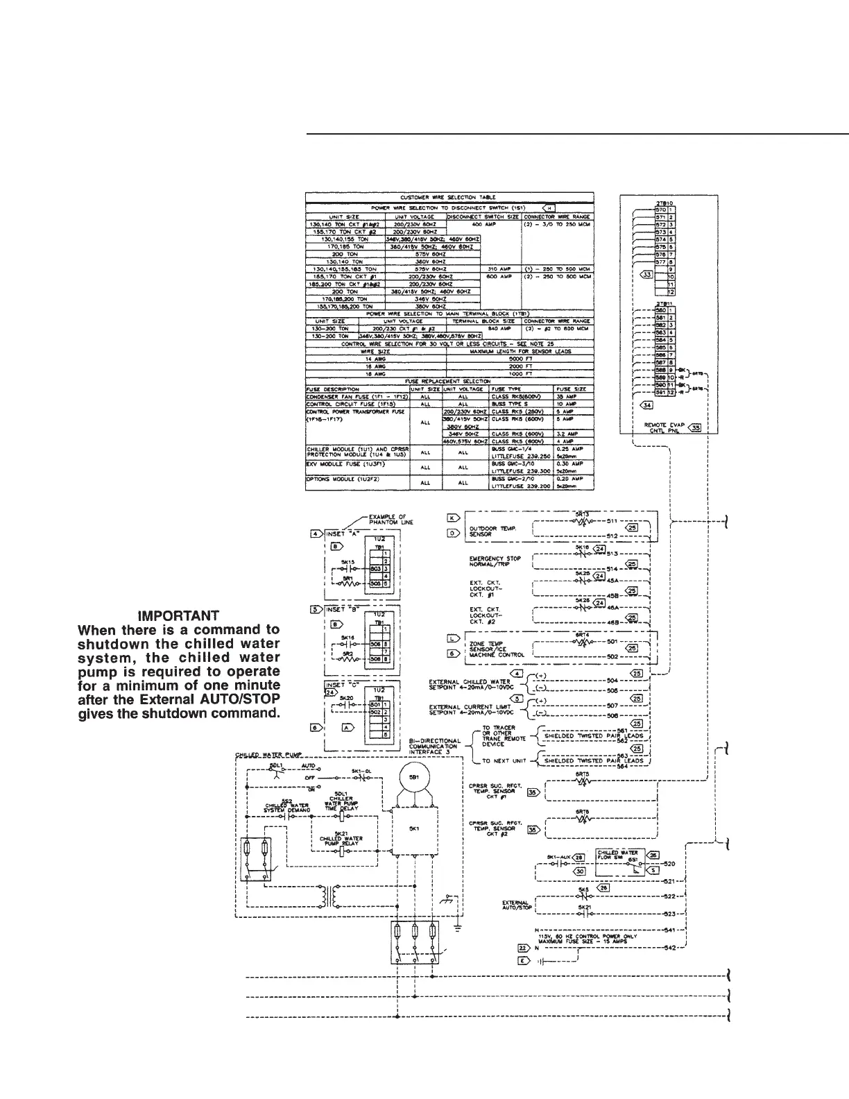
Figure 36
Typical Field Wiring for
RTAA With Remote
Evaporator Option
(Continued on Next Page)

Table of Contents

Related product manuals