EasyManua.ls Logo

Trane RTAA-155 - Page 80

Trane RTAA-155
140 pages
Print Icon
To Next Page IconTo Next Page
To Next Page IconTo Next Page
To Previous Page IconTo Previous Page
To Previous Page IconTo Previous Page
Loading...
80
RTAA-IOM-3
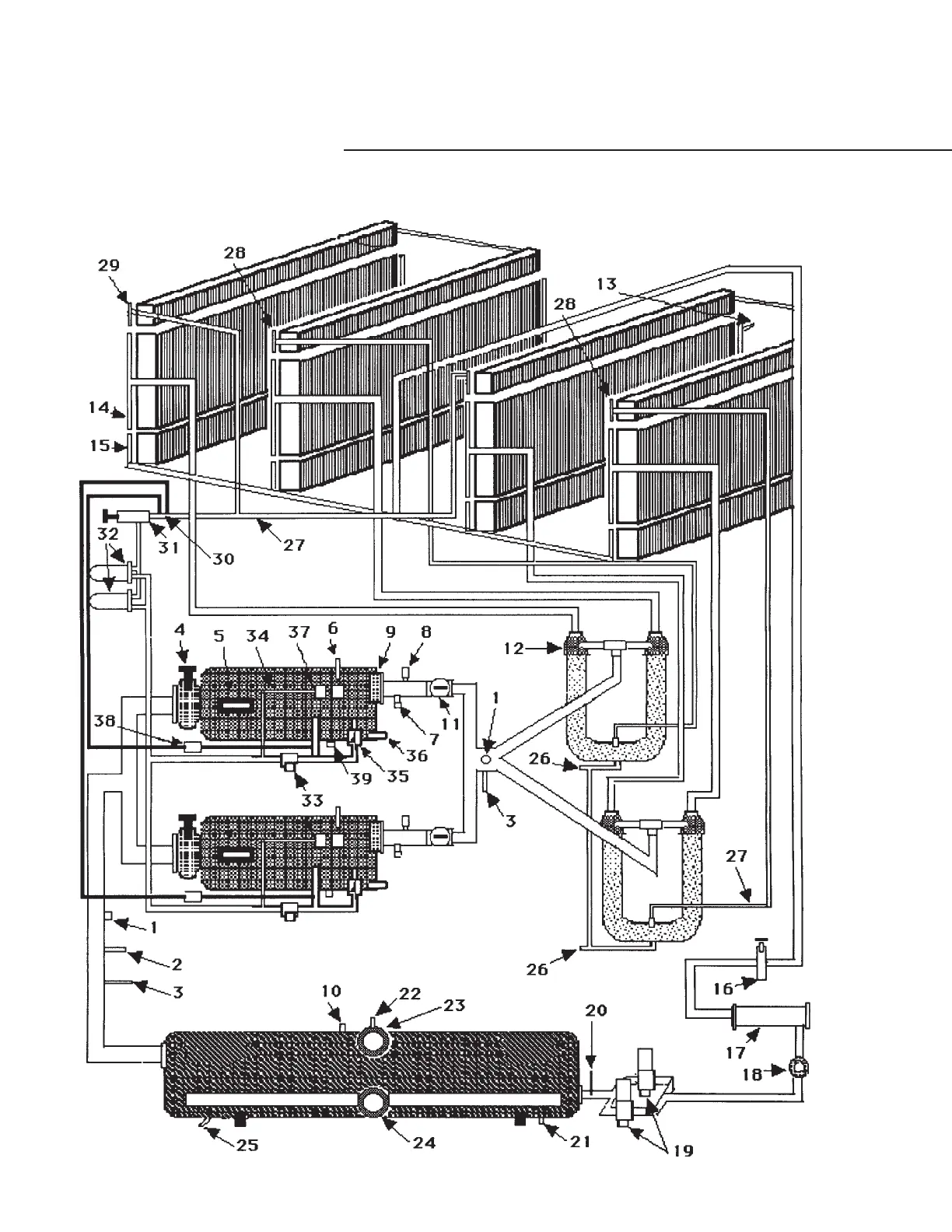
Figure 41
Refrigeration System and
Control Components
Duplex Circuit
(Continued on Next Page)

Table of Contents

Related product manuals