EasyManua.ls Logo

Trane RTHA - Mounting Dimensions; MX Starter

Trane RTHA
48 pages
Print Icon
To Next Page IconTo Next Page
To Next Page IconTo Next Page
To Previous Page IconTo Previous Page
To Previous Page IconTo Previous Page
Loading...
Parts Ordering
44 RLC-SVN005B-EN
Mounting Dimensions
MX Starter
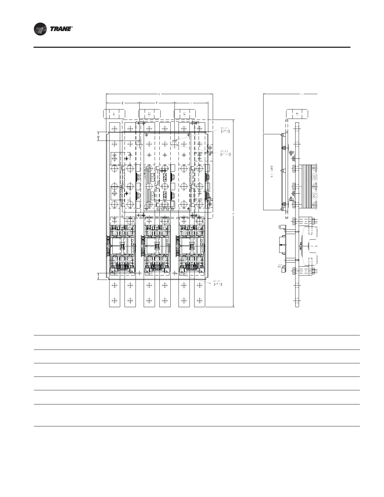
Figure 41. Dimensional drawing of Benshaw solid state starter
1.8.1.1.1.1.1.1.1
MX Card
Table 5. Mounting dimensions for Benshaw starter
AMP
Frame
Size
A
in (mm)
B
in (mm)
C
in (mm)
D
in (mm)
E
in (mm)
F
in (mm)
G
in (mm)
H
in (mm)
J
in (mm)
Weight
lbs (kg)
125-
180
14
19.80
(205.92)
12.27
(311.8)
8.91
(226.3)
17.00
(431.8)
3.88
(98.5)
4.00
(101.5)
3.88
(98.5)
1.00
(25.4)
0.75
(19.1)
43
(19.5)
180 14
21.55
(547.4)
12.27
(311.8)
8.91
(226.3)
17.00
(431.8)
3.88
(98.5
)
4.00
(101.5)
3.88
(98.5)
1.00
(25.4)
0.75
(19.1)
43
(19.5)
180-
302
15
22.00
(558.8)
12.27
(311.8)
9.16
(232.6)
18.5
(469.9)
3.88
(98.5
)
4.00
(101.5)
3.88
(98.5)
1.00
(25.4)
0.75
(19.1)
51
(23.1)
361 16
23.87
(606.2)
12.90
(327.6)
9.16
(232.6)
20.25
(514.4)
4.03
(102.4)
4.31
(109.5)
4.03
(102.4)
1.00
(25.4)
0.75
(19.1)
56
(25.4)
Note: Mounting holes: Keyhole: 0.31 x 0.63 (7.87 x 15.88)
Bottom: 0.31 (7.87)
Amp rating in the first column is the “in the delta” amp rating. Th
is rati
ng is noted in the starter description number digits 6th-8th.
“In The Delta” RLA = Unit nameplate RLA * 1.05 / 1.15 / 1.55

Related product manuals