EasyManua.ls Logo

Trane S9V2C100U5PSBC - Page 27

Trane S9V2C100U5PSBC
108 pages
Print Icon
To Next Page IconTo Next Page
To Next Page IconTo Next Page
To Previous Page IconTo Previous Page
To Previous Page IconTo Previous Page
Loading...
18-CE18D1-1A-EN
27
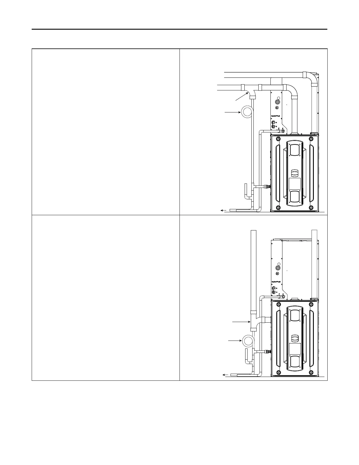
Option 2 Top combustion air intake
If sloping the combustion air intake pipe is not possible, install a DWV
Tee as close to the furnace as possible with drain and trap to prevent
condensation from occurring in the furnace cabinet. Do not tee AC
condensate and combustion air condensate trap together.
Option 2
To an approved
vented drain
Field fabricated trap
Approved DWV Tee
Combustion air
intake
Combustion air
exhaust
Primary drain vent stack must
terminate below the bottom of
the condensate trap
Option 3 Side combustion air intake
If sloping the combustion air intake pipe is not possible, install an
approved DWV Tee as close to the furnace as possible with drain and
trap.
Combustion air
intake
Combustion air
exhaust
Option 3
To an approved
vented drain
Field fabricated trap
Approved DWV Tee
Primary drain vent stack must
terminate below the bottom of
the condensate trap
FFuurrnnaaccee GGeenneerraall IInnssttaallllaattiioonn

Related product manuals