EasyManua.ls Logo

Trane S9V2C100U5PSBC - Page 63

Trane S9V2C100U5PSBC
108 pages
Print Icon
To Next Page IconTo Next Page
To Next Page IconTo Next Page
To Previous Page IconTo Previous Page
To Previous Page IconTo Previous Page
Loading...
18-CE18D1-1A-EN
63
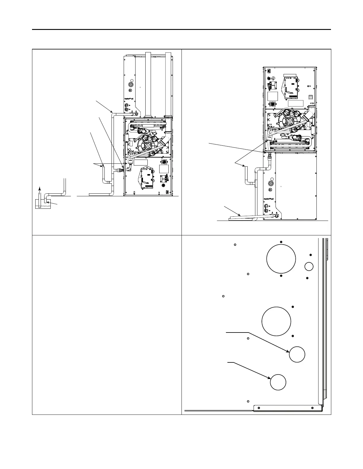
OR
LEFT SIDE DRAIN WITH
EVAPORATOR AND CONDENSATE
DRAIN PIPING MANIFOLDED
TOGETHER.
CONDENSATE PIPE MUST
NOT BE BELOW WATER SU
RFACE
CONDENSATE PUMP
CONDENSATE PIPED
TO OPEN VENTED DRAIN
PRIMARY DRAIN VENT
STACK MUST TERMINATE
BELOW THE BOTTOM OF THE
CONDENSATE TRAP
IF THE FURNACE IS
INSTALLED OVER A FINISHED
CEILING, OVERFLOW FROM
THE PRIMARY DRAIN VENT
STACK MUST FLOW INTO AN
AUXILIARY DRAIN PAN TO
PREVENT DAMAGE TO THE
FINISHED CEILING BELOW
COIL PRIMARY
DRAIN
CONDENSATE
GROMMET
Downflow furnace - Cut the 90 degree section of the condensate
tubing off and connect the tubing to the condensate trap. Install the
condensate grommet into the bottom panel. Cut to length as needed.
DOWNFLOW FURNACES
WITH BOTTOM DRAIN
CONDENSATE PIPED
TO OPEN VENTED DRAIN
PRIMARY DRAIN VENT
STACK MUST TERMINATE
BELOW THE BOTTOM OF THE
CONDENSATE TRAP
IF THE FURNACE IS
INSTALLED OVER A FINISHED
CEILING, OVERFLOW FROM
THE PRIMARY DRAIN VENT
STACK MUST FLOW INTO AN
AUXILIARY DRAIN PAN TO
PREVENT DAMAGE TO THE
FINISHED CEILING BELOW
COIL PRIMARY
DRAIN
CONDENSATE
GROMMET
Downflow furnace with Left Side Condensate
1. Remove left hand condensate plug.
2. Install into bottom cross member.
Left Side
Gas Entry
Left Side
Condensate
CCoonnddeennssaattee DDrraaiinn IInnssttrruuccttiioonnss

Related product manuals