EasyManua.ls Logo

Trane THC102F - Page 35

Trane THC102F
68 pages
Print Icon
To Next Page IconTo Next Page
To Next Page IconTo Next Page
To Previous Page IconTo Previous Page
To Previous Page IconTo Previous Page
Loading...
Installation
RT-SVX22M-EN 35
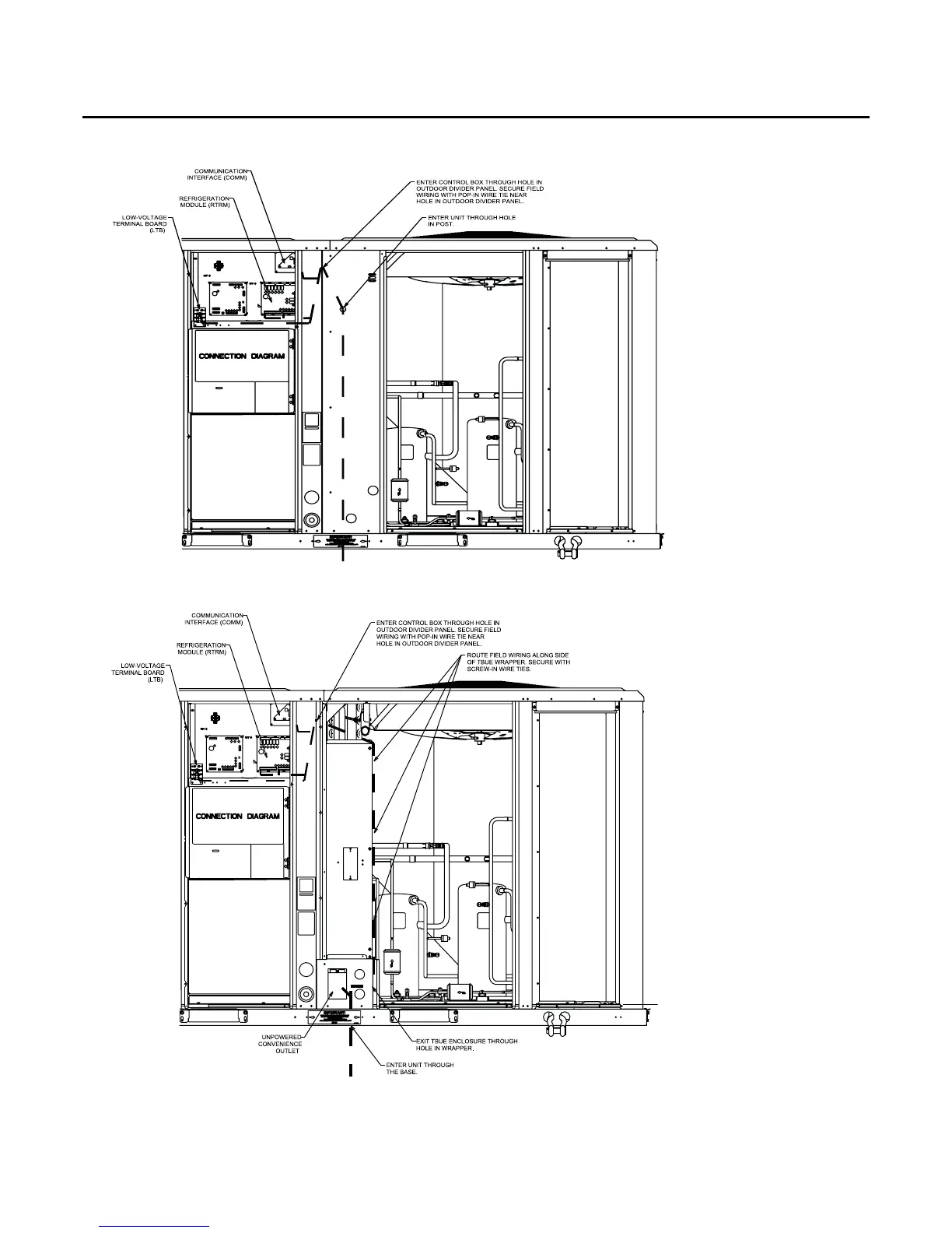
Figure 45. ReliaTel™ (without TBUE) control customer wire routing (10 ton high efficiency)
Figure 46. ReliaTel (with TBUE) control customer wire routing (10 ton high efficiency)

Table of Contents

Related product manuals