EasyManua.ls Logo

Trane TZEMT400 - Page 7

Trane TZEMT400
32 pages
Print Icon
To Next Page IconTo Next Page
To Next Page IconTo Next Page
To Previous Page IconTo Previous Page
To Previous Page IconTo Previous Page
Loading...
7
W1 HEAT
JP1: internal RC/RH Jumper
24RC
24RH
G FAN
W2/O/B
Y1 COMP
Y2 COMP
24C
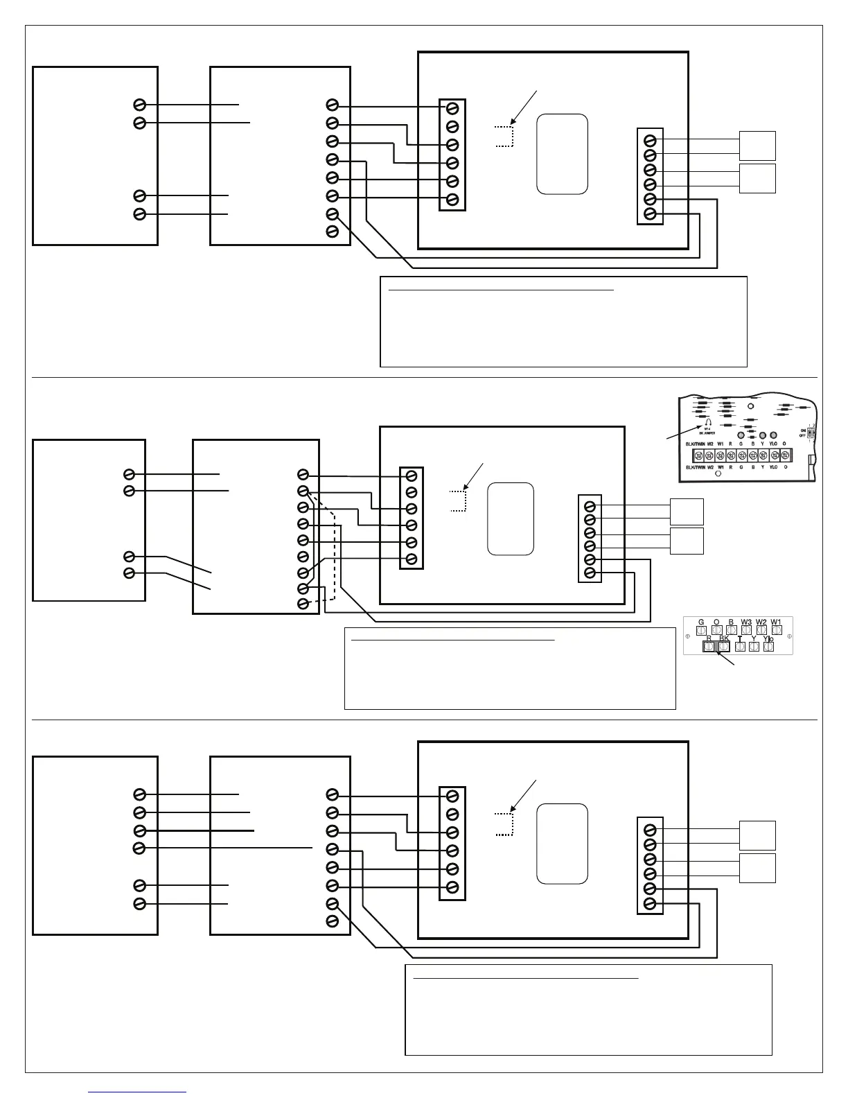
Gas Furnace or Air Handler
System Type A - 1 or 2 Stage Heating with 1 or 2 Stage Cooling
Fan G
Heat Stage 1 W1
Compressor Stage 1 Y1
24VAC Return R
24VAC Common B/C
Compressor Stage 2 Y2
BK
Heat Stage 2 W2
RED
GREEN
WHITE
YELLOW
ORANGE
BROWN
BLUE
RS1
RS1
RS2
RS2
Remote Sensors
Remote
Sensor 1
Remote
Sensor 2
Wiring is not
polarized
Remote Temperature Sensor Connections and Operation: (Note 7)
Indoor sensor connected to RS1. Replaces internal sensor. RS2 not connected.
Indoor sensor connected to RS2. Averages temperature with internal sensor. RS1 not connected.
Indoor sensors connected to RS1 and RS2. Averages RS1 and RS2 sensor temperatures.
Internal sensor is not used.
Outdoor sensor connected to RS2. Reports outdoor temperature to comfort control.
Indoor sensor connected to RS1 and outdoor sensor connected to RS2. RS1 replaces the internal
sensor. RS2 reports the outdoor temperature to comfort control.
Note 1 - May be W or W1
(Note 1)
(Note 5)
(Note 2)
(Note 3, Note 4)
Note 2 - May be Y, Y1, or YLO
Note 3 - May be Y or Y2
Note 5 - R required for 2 stage cooling unit
Note 6 - For 2 Stage Cooling, outdoor unit contains two compressors
Note 7 - The remote sensor feature is available only on the TZEMT500
Note 4 - Y2 only found on variable speed
furnace or air handler
Thermostat Connection
(Note 6)
(Note 7)
Outdoor Unit
Compressor Stage 1 Y1
24VAC Return R
24VAC Common B
Compressor Stage 2 Y2
W1 HEAT
JP1: internal RC/RH Jumper
24RC
24RH
G FAN
W2/O/B
Y1 COMP
Y2 COMP
24C
Gas Furnace or Air Handler
System Type B - 2 Stage Variable Speed Gas Furnace or Variable Speed Air Handler with 2 Step Cooling
Fan G
Heat Stage 1 W1
24VAC Return R
24VAC Common B/C
Compressor Stage 1 Y
Compressor Stage 2 BK
Heat Stage 2 W2
RED
GREEN
WHITE
YELLOW
ORANGE
BROWN
BLUE
RS1
RS1
RS2
RS2
Remote Sensors
(Note 5)
Remote
Sensor 1
Remote
Sensor 2
Air Handler
Jumper
Furnace
Wiring is not
polarized
Note 1 - Field installed jumper from R to O.
(Note 1)
(Note 2)
Note 2 - Cut/remove R to BK jumper
Note 3 - For non-communicating variable speed air handler.
(For communicating air handler, use system type A diagram.)
Thermostat Connection
O
(Note 3, Note 4)
Jumper
Note 4 - For 2 Step Cooling, outdoor unit contains one 2 stage scroll compressor
Note 5 - The remote sensor feature is available only on the TZEMT500
(Note 2)
(Note 2)
YLO
Outdoor Unit
Compressor Stage 1 Y1
24VAC Return R
24VAC Common B
Compressor Stage 2 Y2
Remote Temperature Sensor Connections and Operation: (Note 5)
Indoor sensor connected to RS1. Replaces internal sensor. RS2 not connected.
Indoor sensor connected to RS2. Averages temperature with internal sensor. RS1 not connected.
Indoor sensors connected to RS1 and RS2. Averages RS1 and RS2 sensor temperatures.
Internal sensor is not used.
Outdoor sensor connected to RS2. Reports outdoor temperature to comfort control.
Indoor sensor connected to RS1 and outdoor sensor connected to RS2. RS1 replaces the internal
sensor. RS2 reports the outdoor temperature to comfort control.
W1 HEAT
JP1: internal RC/RH Jumper
24RC
24RH
G FAN
W2/O/B
Y1 COMP
Y2 COMP
24C
Air Handler
System Type C - PSC, Variable Speed, or Communicating Air Handler with 1 or 2 Stage/Step Heat Pump
Fan G
Heat Stage 1 W1
Compressor Stage 1 Y1
24VAC Return R
24VAC Common B/C
Compressor Stage 2 Y2
BK
O
RED
GREEN
WHITE
YELLOW
ORANGE
BROWN
BLUE
RS1
RS1
RS2
RS2
Remote Sensors
(Note 8)
Remote
Sensor 1
Remote
Sensor 2
Wiring is not
polarized
Note 1 - May be W or W1
(Note 1)
(Note 2)
(Note 3)
(Note 4, Note 5, Note 6, Note 7)
Note 2 - May be Y, Y1, or YLO
Note 3 - May be Y or Y2
Note 4 - Applies to 2 step heat pumps matched with communicating air handler only.
All other variable speed air handlers use system type D diagram.
Thermostat Connection
Remote Temperature Sensor Connections and Operation: (Note 8)
Indoor sensor connected to RS1. Replaces internal sensor. RS2 not connected.
Indoor sensor connected to RS2. Averages temperature with internal sensor. RS1 not connected.
Indoor sensors connected to RS1 and RS2. Averages RS1 and RS2 sensor temperatures.
Internal sensor is not used.
Outdoor sensor connected to RS2. Reports outdoor temperature to comfort control.
Indoor sensor connected to RS1 and outdoor sensor connected to RS2. RS1 replaces the internal
sensor. RS2 reports the outdoor temperature to comfort control.
Outdoor Unit
Compressor Stage 1 Y1
24VAC Return R
24VAC Common B
Compressor Stage 2 Y2
X2
O
Note 5 - For 2 Stage Cooling, outdoor unit contains two compressors
Note 6 - For 2 Step Cooling, outdoor unit contains one 2 stage scroll compressor
Note 7 - PSC air handler for single stage heat pump only
Note 8 - The remote sensor feature is available only on the TZEMT500

Related product manuals