EasyManua.ls Logo

Trane YHC092E - Page 15

Trane YHC092E
64 pages
Print Icon
To Next Page IconTo Next Page
To Next Page IconTo Next Page
To Previous Page IconTo Previous Page
To Previous Page IconTo Previous Page
Loading...
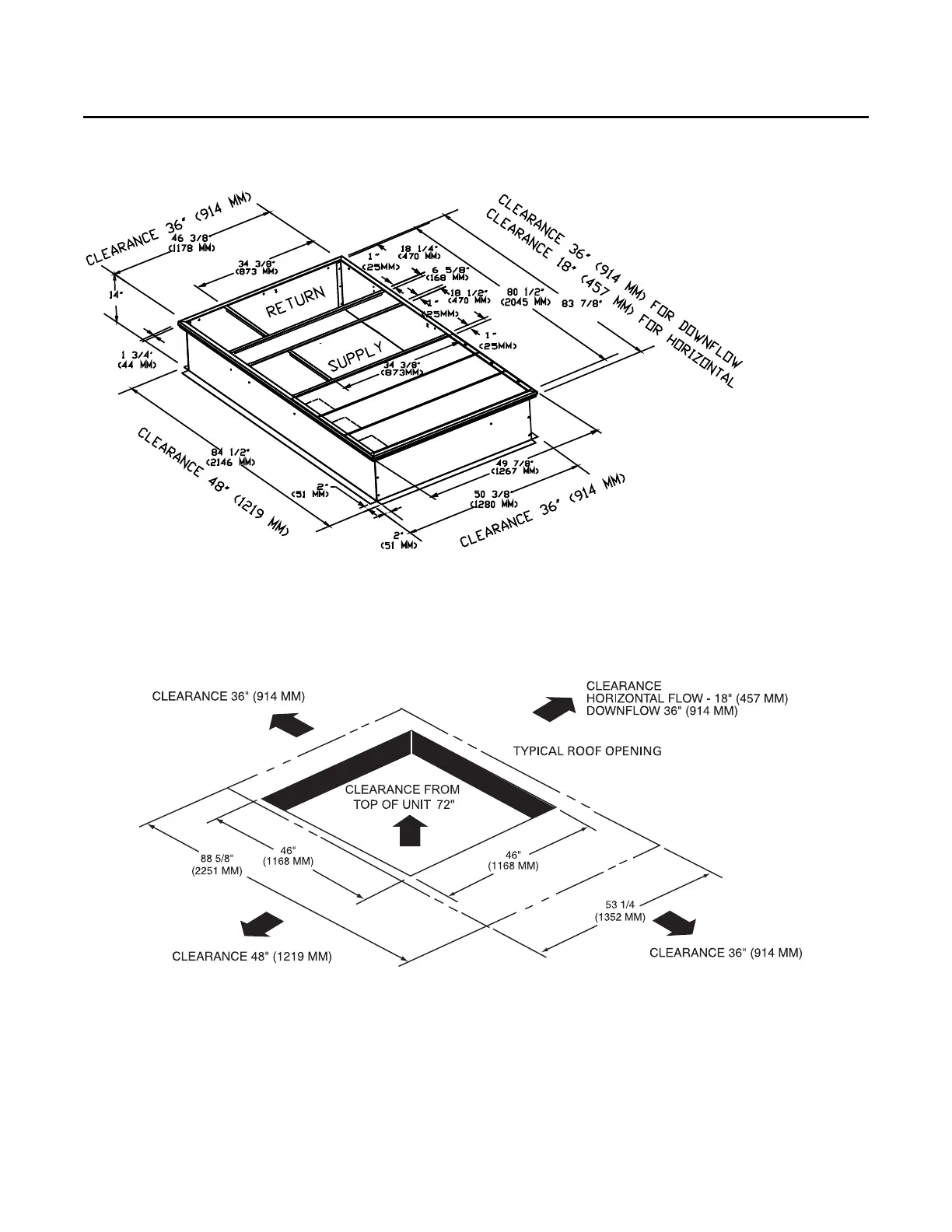
Unit Dimensions
RT-SVX21K-EN 15
Figure 6. 6, 7½ (single) ton standard efficiency, 4-5 ton high efficiency - roof curb
Note: All dimensions are in inches/millimeters.
(2130 MM)
(356 MM)
Figure 7. 6, 7½ (single) ton standard efficiency, 4-5 ton high efficiency - unit clearance and roof opening
Note: All dimensions are in inches/millimeters.

Table of Contents

Related product manuals