EasyManua.ls Logo

Unical !DEA CS 24 PLUS el

Unical !DEA CS 24 PLUS el
76 pages
Go to English
To Next Page IconTo Next Page
To Next Page IconTo Next Page
To Previous Page IconTo Previous Page
To Previous Page IconTo Previous Page
Loading...
18
W hen choosing the place of the installation of the
b oiler, follow the safety instructions b elow:
- P lace the b oiler in rooms protected from frost.
- Av oid installation in rooms with a corrosiv e or v ery
dusty atmosphere.
- The appliance must only b e installed on a v ertical
and solid wall which can support its weight.
- The wall must not be made of ammable material.
!!DEA CS/RS 24 el
!DEA CS 24 PLUS el
Since the temperature of the wall on which the b oil-
er is installed and the temperature of the coax ial
ex haust pipe do not ex ceed, in normal operating
conditions, a room temperature b eyo nd 60 K, it is
not necessary to ob serv e the minimum distances
from ammable walls
For b oilers with doub le intake and exh aust pipes, in
the event of crossing ammable walls, insert insula-
tion between the wall and the ue gas exhaust pipe.
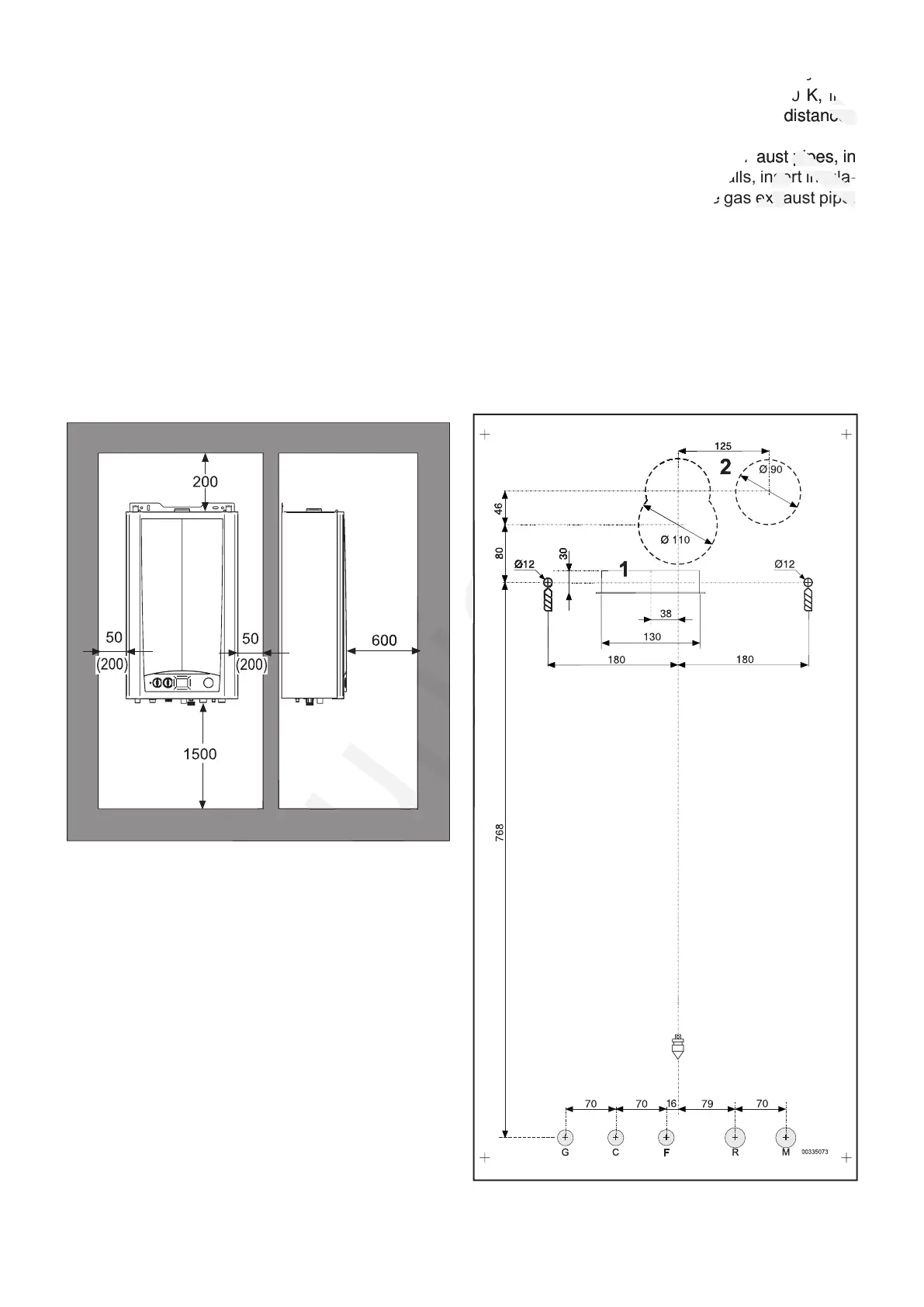
3.5 - POSITIONING THE BOILER
Clearance
www.unicalag.ru
www.unicalag.ru
www.unicalag.ru
www.unicalag.ru
www.unicalag.ru
www.unicalag.ru
www.unicalag.ru
www.unicalag.ru
www.unicalag.ru
www.unicalag.ru
www.unicalag.ru
www.unicalag.ru
www.unicalag.ru
www.unicalag.ru
www.unicalag.ru
www.unicalag.ru
www.unicalag.ru
www.unicalag.ru
www.unicalag.ru
www.unicalag.ru
www.unicalag.ru
www.unicalag.ru
www.unicalag.ru
www.unicalag.ru
www.unicalag.ru
www.unicalag.ru
www.unicalag.ru
www.unicalag.ru
www.unicalag.ru
www.unicalag.ru
www.unicalag.ru
www.unicalag.ru
www.unicalag.ru
www.unicalag.ru
www.unicalag.ru
www.unicalag.ru
www.unicalag.ru
www.unicalag.ru
www.unicalag.ru
www.unicalag.ru
www.unicalag.ru
www.unicalag.ru
www.unicalag.ru
www.unicalag.ru
www.unicalag.ru
www.unicalag.ru
www.unicalag.ru
www.unicalag.ru
www.unicalag.ru
www.unicalag.ru
www.unicalag.ru
www.unicalag.ru
www.unicalag.ru
www.unicalag.ru
www.unicalag.ru
www.unicalag.ru
www.unicalag.ru
www.unicalag.ru
www.unicalag.ru
www.unicalag.ru
www.unicalag.ru
www.unicalag.ru
www.unicalag.ru
www.unicalag.ru
www.unicalag.ru
www.unicalag.ru
www.unicalag.ru
www.unicalag.ru
www.unicalag.ru
ex haust pipe do not ex ceed, in normal operating
www.unicalag.ru
ex haust pipe do not ex ceed, in normal operating
conditions, a room temperature b eyo nd 60 K, it is
www.unicalag.ru
conditions, a room temperature b eyo nd 60 K, it is
not necessary to ob serv e the minimum distances
www.unicalag.ru
not necessary to ob serv e the minimum distances
For b oilers with doub le intake and exh aust pipes, in
www.unicalag.ru
For b oilers with doub le intake and exh aust pipes, in
the event of crossing ammable walls, insert insula
www.unicalag.ru
the event of crossing ammable walls, insert insula
-
www.unicalag.ru
-
tion between the wall and the ue gas exhaust pipe.
www.unicalag.ru
tion between the wall and the ue gas exhaust pipe.

Table of Contents

Related product manuals