EasyManua.ls Logo

USTC 2500 jbt - Page 71

Default Icon
98 pages
Print Icon
To Next Page IconTo Next Page
To Next Page IconTo Next Page
To Previous Page IconTo Previous Page
To Previous Page IconTo Previous Page
Loading...
SECTION 6 ELECTRICAL
3120933 Rev. 0 USTC 6-9
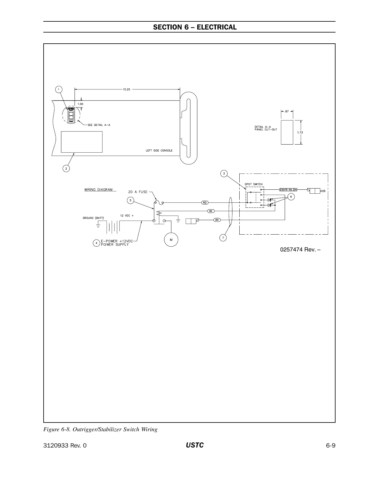
Figure 6-8. Outrigger/Stabilizer Switch Wiring
0257474 Rev.
Courtesy of Crane.Market

Table of Contents