EasyManua.ls Logo

USTC 2500 jbt - Page 95

Default Icon
98 pages
Print Icon
To Next Page IconTo Next Page
To Next Page IconTo Next Page
To Previous Page IconTo Previous Page
To Previous Page IconTo Previous Page
Loading...
SECTION 7 HYDRAULICS
3120933 Rev. 0 USTC 7-21
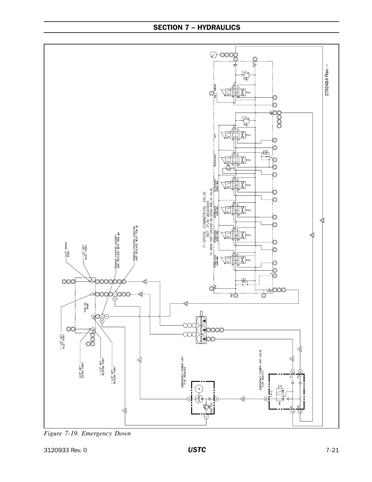
Figure 7-19. Emergency Down
2792484 Rev.
Courtesy of Crane.Market

Table of Contents