EasyManua.ls Logo

VC 7210 - Available Accessories; Cables for Power Supply and IO Interface

VC 7210
34 pages
Print Icon
To Next Page IconTo Next Page
To Next Page IconTo Next Page
To Previous Page IconTo Previous Page
To Previous Page IconTo Previous Page
Loading...
VC72XX_HW.pdf Hardware Documentation VC72XX Smart Cameras
1996-2016 Vision Components GmbH Ettlingen, Germany
24
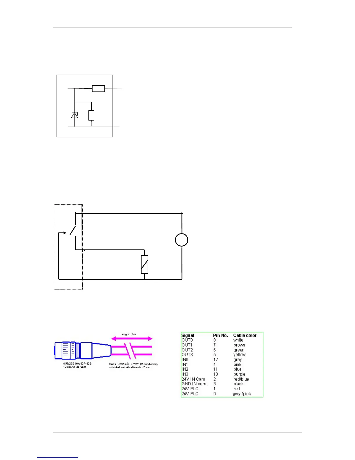
3.3.3.1 Connection of PLC inputs VC72XX
- 4 digital Inputs
- Operating Voltage 12 to 24 V
- Threshold Voltage 8V (input high for signals
greater 8V)
- Maximum Voltage: 28V
- Reverse voltage protection
- Input Current 1mA @ 24V
3.3.3.2 Connection of PLC outputs VC72XX
relais,
motor,
etc.
GND
(black cable)
12-24V
(red cable)
inside camera
12-24V
+
- 4 digital outputs
- Operating Voltage 12 to 24 V
- current per output: 500 mA (total
current all outputs < 1000 mA)
- Connect both 12-24 V PLC power
supply pins 1 and 9.
- bit = 1 output will switch positive
voltage
- short-circuit and over- temperature
protection (2A), pulsing
3.3.4 Available Accessories / Cables for Power Supply and IO Interface
Equipped on one end with a Hirose plug jack, length 5m, 10m or 25m
Refer to section 4.2 for a list of available cables with order numbers.
Inside camera
10k
4.7k
PLCin
max 24V
+20%
GNDin com
2.7V