EasyManua.ls Logo

Veit SG67 - Circuit Diagram - 2.2 kW

Veit SG67
87 pages
Print Icon
To Next Page IconTo Next Page
To Next Page IconTo Next Page
To Previous Page IconTo Previous Page
To Previous Page IconTo Previous Page
Loading...
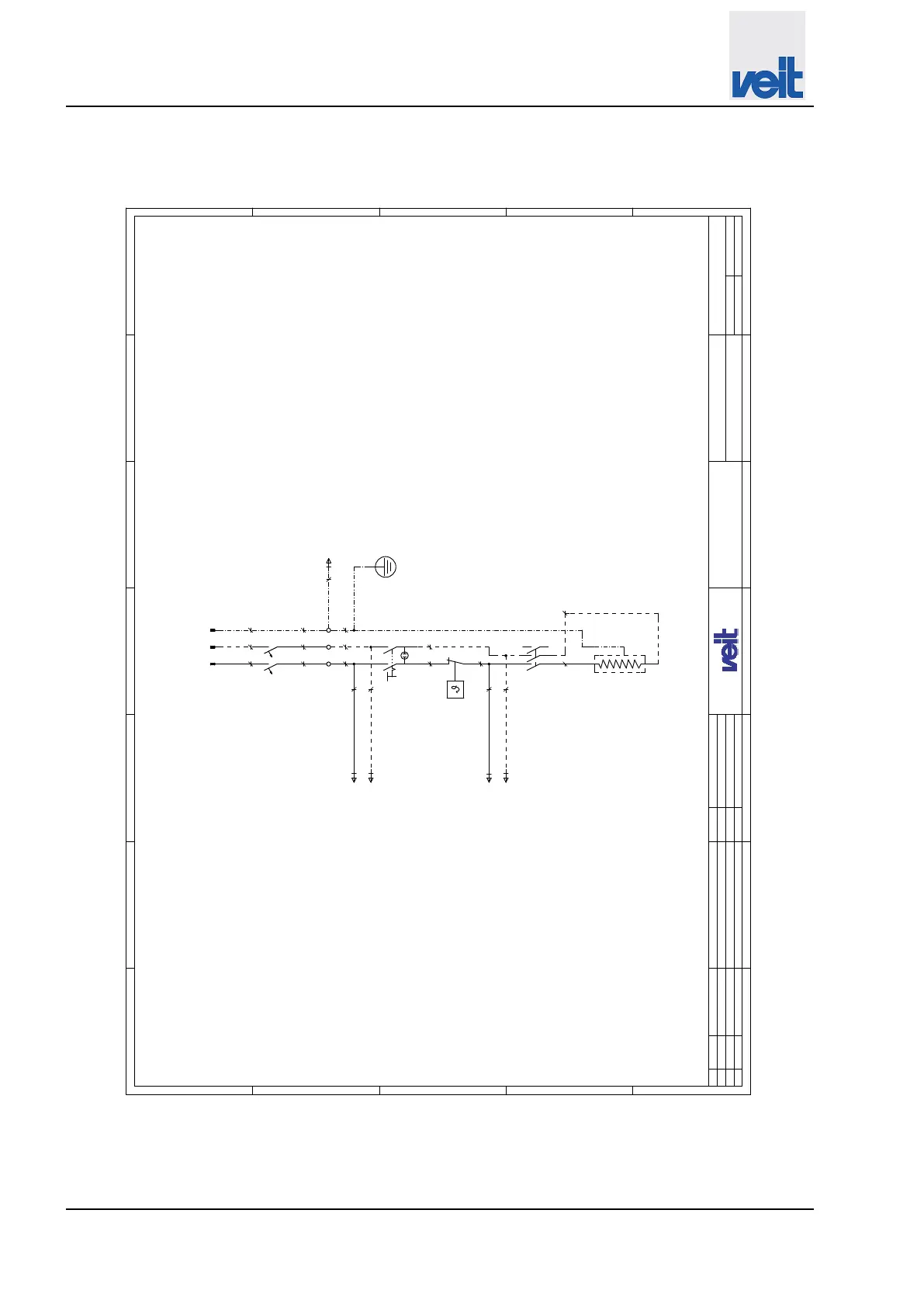
11.2.1 Circuit diagram 2.2 kW
620 1 3 54
A
B
C
D
E
1
Blatt +:Von:
Gerät:
SG67_2,2KW_2.1
supply SG67
Einspeisung SG67
Blattbeschreibung:
Bearb.:
Gepr.:
Norm:
Erstellt:
Index Datum Geprüft von Prüfvermerk
Blatt:
2 2
Blatt -:
23.11.2018
SBAUER
- Projektnr.:
Kunde:
V2.1
620 1 3 54
A
B
C
D
E
Spannung/voltage: 1NAC 230V 50/60Hz + 2AC 220V 50/60Hz
Leistung/elektrical power: 2,4KW
Netzseitige Absicherung/fuses of power supply: 16A
-F1
B 16
-F2
B 16
N (V)
PE
U
-X2
-S1
2
1
5
4
DE/Ein-Aus
-R1
Montageplatte
mounting plate
connector
Sicherungen
fuses
SG/On-Off
-FT1
Temperaturbegrenzer
temperature limiter
Kessel Heizelemente
heaters vessel
-A1:X12/1(2.0)
bnrdbn
bu
L
N
PE
-X1
Anschlussstecker
-A1:X1/1
(2.0)
(L1)
(L2)
-S2:1A
(2.5)
-A1:X1/3
(2.0)
bu
gnye
bn
bu
gnye
bn
og
bu
bn
bu
gnye
bu
rd
-S2:2A
(2.5)
bu
2
1 3 5
4 6
-K2
(2.3)
gnye
Fig. 34: Circuit diagram_2.2kW_2_1_page 1
Spare parts
Circuit diagram > Circuit diagram 2.2 kW
30.09.2022
Steam generator VEIT SG67
78

Related product manuals