EasyManua.ls Logo

Venmar K7 ERV - K10 HRV et 50 H

Venmar K7 ERV
40 pages
Print Icon
To Next Page IconTo Next Page
To Next Page IconTo Next Page
To Previous Page IconTo Previous Page
To Previous Page IconTo Previous Page
Loading...
17
Pour l’installateur
• Danger d’électrocution. Toujours débrancher l’appareil avant d’effectuer les travaux d’entretien ou de réparation.
• Cet appareil est muni d’une protection contre les surcharges (fusible). Un fusible grillé indique une surcharge ou
un court-circuit. Si le fusible grille, débrancher l’appareil de la prise de courant. Cesser d’utiliser l’appareil et
communiquer avec le soutien technique.
AVERTISSEMENT
N
BL
BR
N
B
V
A1
J4
J6
1
2
3
1
2
J10
J14
10
9
8
7
6
5
4
3
2
1
1 2 3 4 5
J12
12
3
4
5
J8
24V
classe
2
9,5V
classe 2
BL
B
O
O
J
12345 12
1 2
J3
J2
J1
M2
A2
Thermistor
F1
3A
Type 3AG
T1
12 0 Vo lt AC
60 Hz
N
V
R
J
B
G
R
Y
OL
OC
I
JU1
123
H
M
R1
120 VCA
J10-1
BR
G
R
sc
BR
G
R
R
76V
10 3V
64V
55V
ne ut re
sc
12 0V
N
BL
M
J4-1
J6-1
J6-2
J4-2
K3
C1
J4-3
J13
ICP
12
1234
J9
C1
M1
S1
BL
C
IRCUIT
120
VOLTS
F
ILS
BASSE
TENSION
CLASSE
2
INSTALLÉS
EN
USINE
F
ILS
BASSE
TENSION
CLASSE
2
INSTALLÉS
SUR
P
LACE
C
ODE
DES
COULEURS
B
LANC
B
LEU
B
RUN
J
AUNE
N
OIR
G
RIS
B
BL
BR
J
N
G
O
RANGE
P
OURPRE
R
OUGE
SANS
CO
NNEXION
V
ERT
O
P
R
SC
V
I
NTERRUPTEUR
PRIORIT
AIRE
(
O
PTIONNEL
)
F
IL
S
DE
LA
COMMANDE
INSTALLÉS
S
UR
PLACE
S
YNCHRONISATION
AU
VENTILATEUR
DE
LA
FOURNAISE
(
O
PTIONNELLE
)
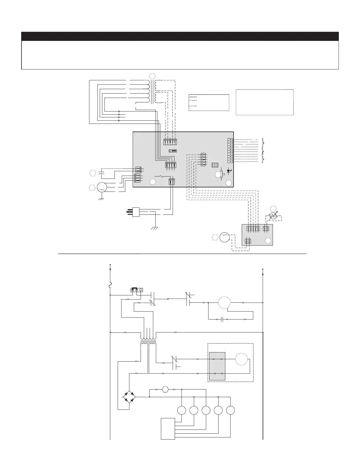
La basse vitesse optionnelle
de 64 pi³/min s’obtient en
connectant le fil BRUN au ROUGE
(Voir Réf. 1)
C
AR
TE
É
LECTRONIQUE
C
ARTE
ÉLECTRONIQUE
DU
S
YST ÈME
VOLET
M
OTEUR
DU
VO
LET
C
ONDENSATE U R
DU
MOTEUR
M
O
TEUR
DU
VENTILATEUR
L
IGNE
N
EUTRE
M
OTEUR
DU
VENTILATEUR
M1
C
ONDENSATEUR
DU
MOTEUR
Système volet
M
OTEUR
DU
VOLET
M2
Processeur
sc
J
9.3 K10 HRV ET 50H

Table of Contents

Related product manuals