EasyManua.ls Logo

VESDA VESDA-E VEP-A00-1P - Page 18

Default Icon
112 pages
Print Icon
To Next Page IconTo Next Page
To Next Page IconTo Next Page
To Previous Page IconTo Previous Page
To Previous Page IconTo Previous Page
Loading...
VESDA-EVEP-A00-P Product Guide
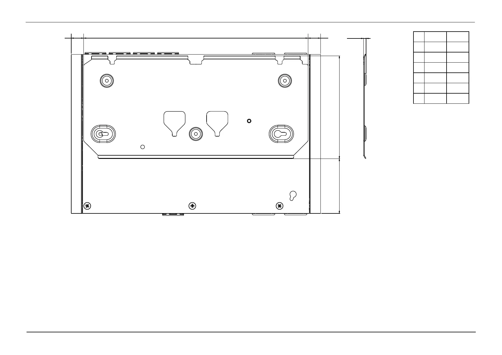
A B C
D
E
F
mm inch
A 17.5 0.69
B 315.0 12.4
C 17.5 0.69
D 144.99 5.71
E 77.2 3.04
F 3.5 0.1
Figure2-5: Rear dimensions with Mounting Bracket
12 www.xtralis.com

Related product manuals