EasyManua.ls Logo

VESDA VESDA-E VEP-A00-1P - Page 30

Default Icon
112 pages
Print Icon
To Next Page IconTo Next Page
To Next Page IconTo Next Page
To Previous Page IconTo Previous Page
To Previous Page IconTo Previous Page
Loading...
VESDA-EVEP-A00-P Product Guide
24 www.xtralis.com
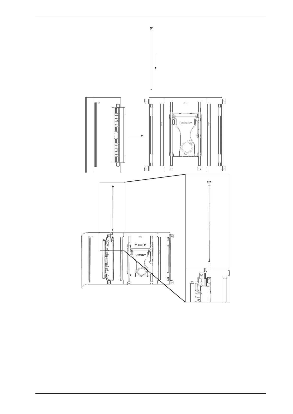
Figure4-12: Replacing the door hinge pin - showing correct positioning of door and pin

Related product manuals