EasyManua.ls Logo

VESDA VESDA-E VEP-A00 - Page 19

VESDA VESDA-E VEP-A00
112 pages
Print Icon
To Next Page IconTo Next Page
To Next Page IconTo Next Page
To Previous Page IconTo Previous Page
To Previous Page IconTo Previous Page
Loading...
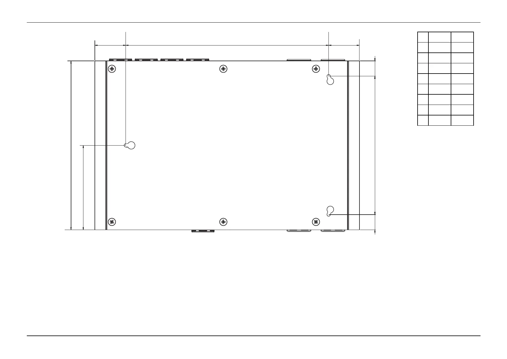
mm inch
A 224.0 8.82
B 112.0 4.41
C 40.9 1.61
D 268.39 10.57
E 40.71 1.6
F 20.25 0.8
G 183.5 7.22
H 20.25 0.8
Figure2-6: Rear Dimensions with hole locations for direct mounting
VESDA-EVEP-A00-P Product Guide
www.xtralis.com 13

Related product manuals