EasyManua.ls Logo

Viessmann ECV Series - Page 24

Viessmann ECV Series
52 pages
Print Icon
To Next Page IconTo Next Page
To Next Page IconTo Next Page
To Previous Page IconTo Previous Page
To Previous Page IconTo Previous Page
Loading...
Connections
24
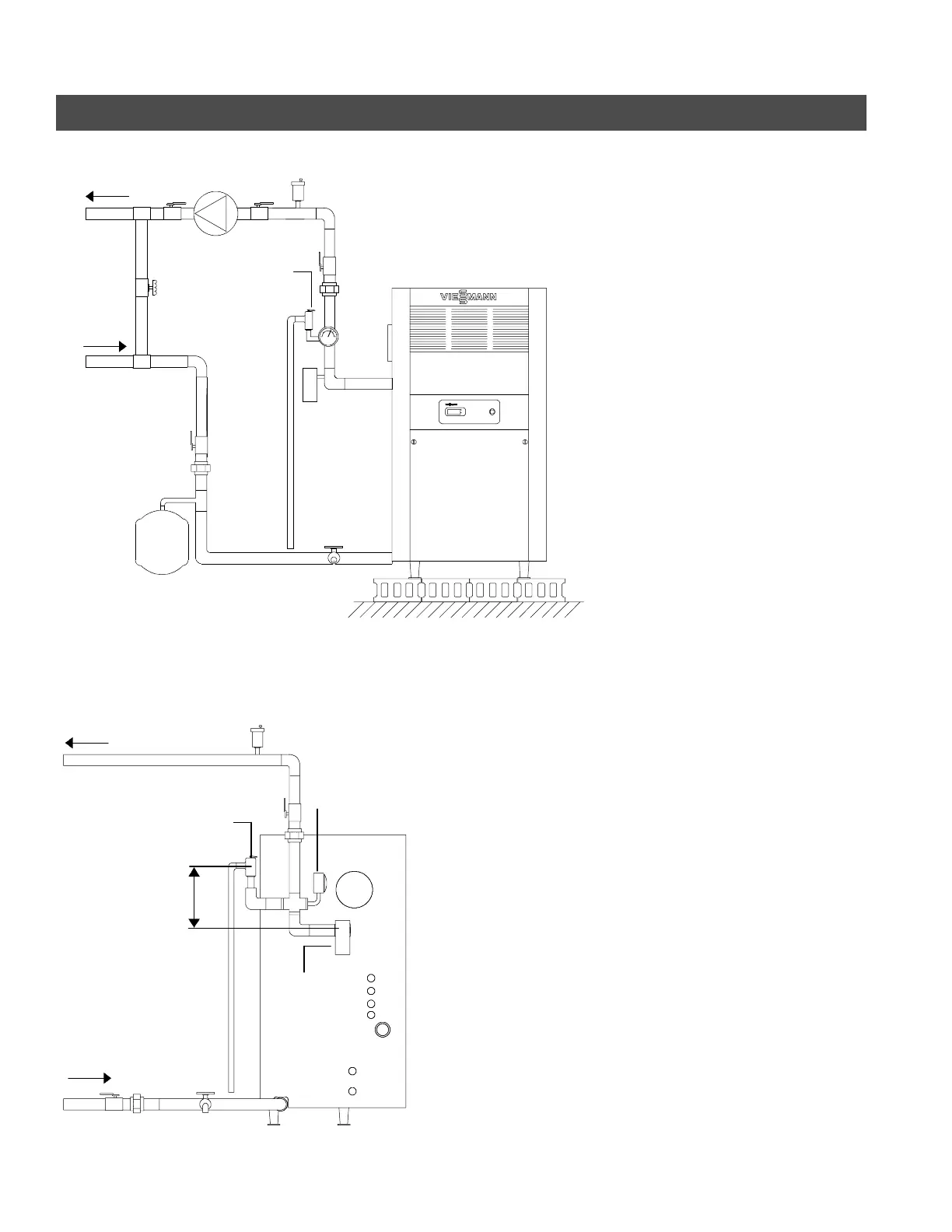
Low Water Cut-off
If the ECV boiler is installed above
radiation level, a low water cut-off
device must be installed. See Figs. 9
and 10 f or location of low water cut-off
device. Note: Flow direction must be as
shown in Fig. 9. Low water cut-off
supplied by others. When required by
the authority having jurisdiction, t he
installation must conform t o the
Standard for Controls and Safety
Devices for Automatically Fired Boilers,
ANSI/ASME CSD-1.
5167 450 v1.4
C
F
Air vent (field supplied)
Supply
Return
Boiler drain
Low water
cut off
if required
Precharged
expansion
tank
Pressure relief
valve must be
within first 18”
of boiler piping
Flow direction
Flow direction must be as shown
Fig. 9
Air vent (field supplied)
Flow direction
Supply
Return Boiler drain
Pressure relief
valve must be
within first 18”
of boiler piping
Pressure
gage
LWCO
(if required)
18” /
457 mm
Fig. 10

Other manuals for Viessmann ECV Series

Related product manuals