EasyManua.ls Logo

Viking VCSB5423 - Cabinet Information

Viking VCSB5423
36 pages
Print Icon
To Next Page IconTo Next Page
To Next Page IconTo Next Page
To Previous Page IconTo Previous Page
To Previous Page IconTo Previous Page
Loading...
15
Headline
15
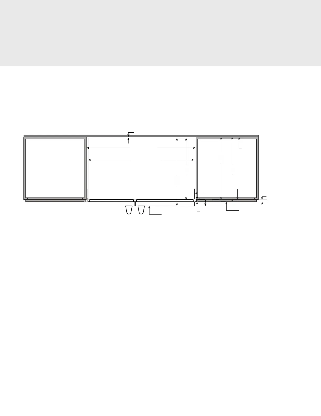
Cabinet Information
For installation in 24" (61.0 cm) deep cabinets, the door face protrudes 2-3/4” (7.0 cm) from the cabinet
face. The handle protrudes an additional 2-15/16” (7.5 cm) into the room.
23-3/4”
(60.3 cm)
26-1/4”
(66.7 cm)
Face of
stainless steel door
24”
(61.0 cm)
24-3/4”
(62.9 cm)
Face of
door/drawer
Finished
Wall
Face of
cabinet
frame
Standard
Side trim
2-3/8”
(6.0 cm)
3/4”
(.6 cm)
1/4”
(0.6 cm)
27/32”
(0.2 cm)
42” (106.7 cm)
48” (121.9 cm)
41” (104.1 cm)
47” (119.4 cm)
* Refrigerator foam cabinet
can vary in de
p
th +/- 1/8” (0.3 cm)
Standard Mount Installation

Other manuals for Viking VCSB5423

Related product manuals