EasyManua.ls Logo

Vmac PREDATAIR60 - Page 16

Vmac PREDATAIR60
45 pages
Print Icon
To Next Page IconTo Next Page
To Next Page IconTo Next Page
To Previous Page IconTo Previous Page
To Previous Page IconTo Previous Page
Loading...
VMAC – Vehicle Mounted Air Compressors
Toll Free: 1-800-738-8622 Local: 1-250-740-3200
Fax: 1-250-740-3201
16
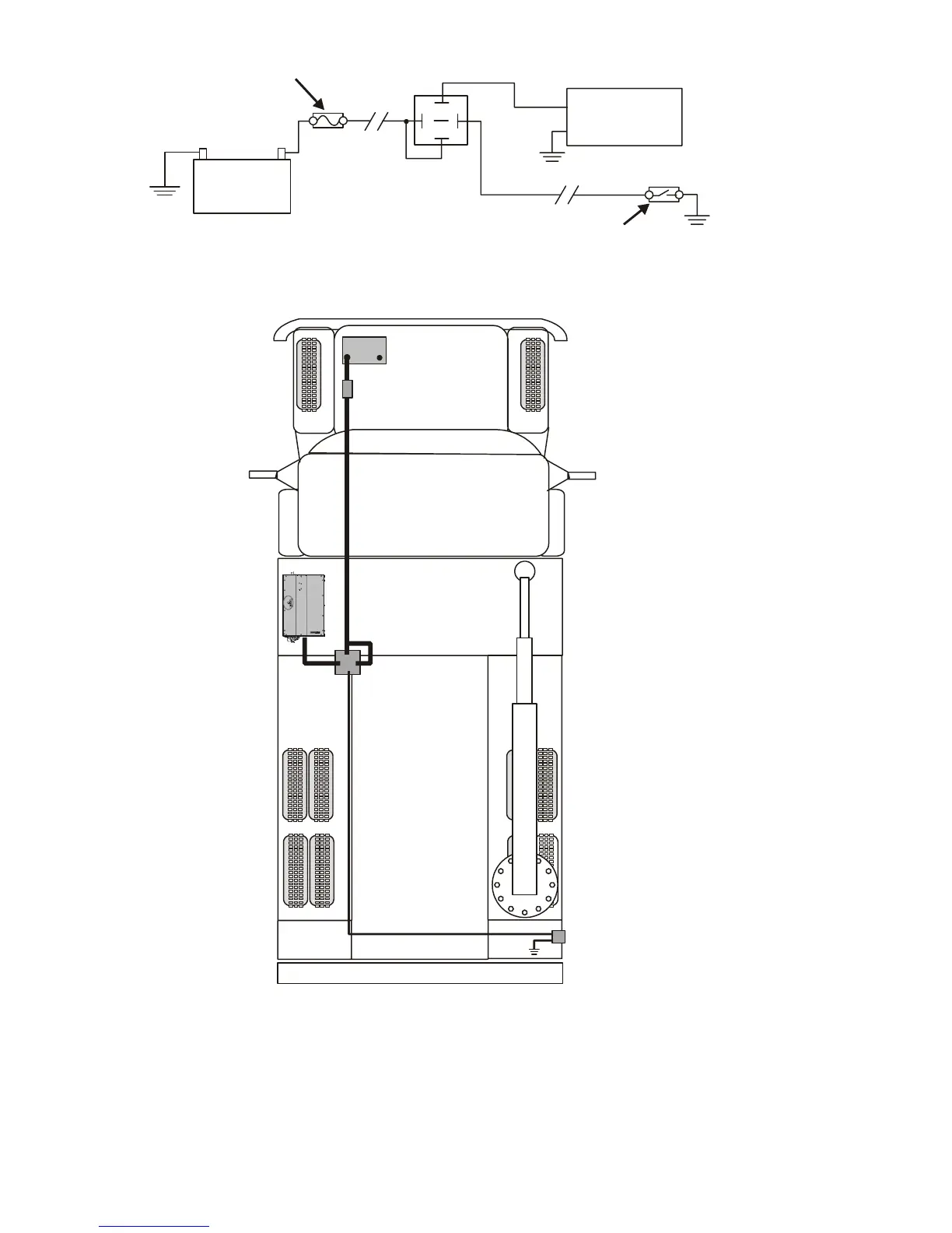
Battery
Fuse
+
Relay
Remote
Switch
PREDATAIR60
Battery
Fuse or circuit breaker
30A
Relay
PREDATAIR60
Remote switch
see table 1 for correct wire gauge
18 AWG
*
*
*
*
Ground to chassis or back
to battery negative termina
l
Red
Green
Figure 11 – Ground actuating
This method keeps heavy current-carrying wires short.

Related product manuals