EasyManua.ls Logo

Vmac VR150 - Part 4: Installing the Control Components

Vmac VR150
44 pages
Print Icon
To Next Page IconTo Next Page
To Next Page IconTo Next Page
To Previous Page IconTo Previous Page
To Previous Page IconTo Previous Page
Loading...
VMAC – Vehicle Mounted Air Compressors
Toll Free: 1-800-738-8622
Fax: 1-250-740-3201
24
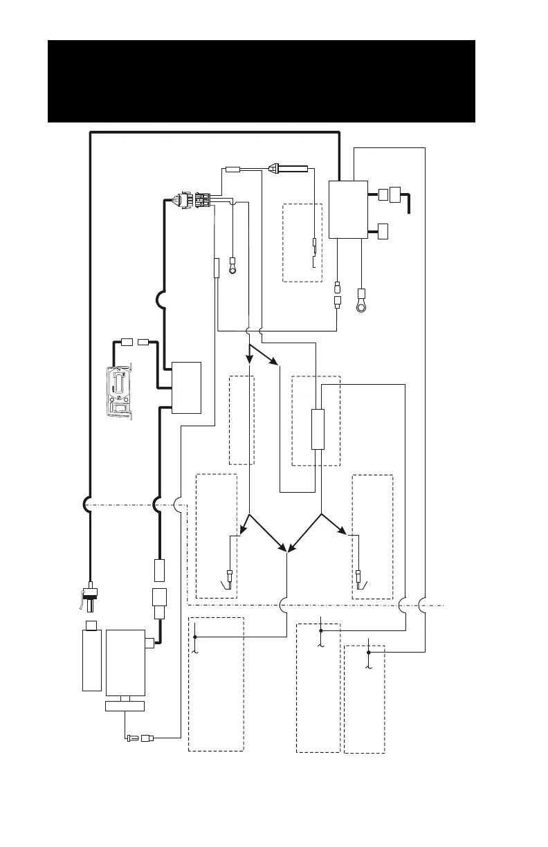
Part 4: Installing the Control
Components
Green 7 pin connector
Control Box
Switching
Box
White
Interface
Connector
Green 4 pin
connector
White
White
Red
White
Compressor
Inlet valve
Clutch
Green
Green
Black
Black
Black
FUSE PANEL
Keyed 12 volt
FIREWALL
AUTO TRANS
MANUAL TRANS
Splice to white wire
with pink stripe at
firewall connector
Splice to light blue wire with
yellow stripe at the 8-pin
connector in engine
compartment
To ground
Yell ow
DDC
“VR 70 Black wire”
Blue
Blue
Black 3 pin
connector
Throttle
Controller
RedRed
White
White
Connect to accelerator pedal
OEM Connector from
accelerator pedal
To ground
Yellow
HYDRAULIC BRAKES
Connect to park brake switch
HYDRAULIC BRAKES
Connect to park brake switch
AIR BRAKES
Splice to tan wire with
two red stripes at the
pressure switch on the
firewall