EasyManua.ls Logo

WABCO ABS - 7 SPN, SID, FMI Fault Codes; Diagnostic Trouble Code List

WABCO ABS
122 pages
Print Icon
To Next Page IconTo Next Page
To Next Page IconTo Next Page
To Previous Page IconTo Previous Page
To Previous Page IconTo Previous Page
Loading...
6 Wiring Diagrams and Connectors
63
WABCO Maintenance Manual MM-0112 (Revised 07-18)
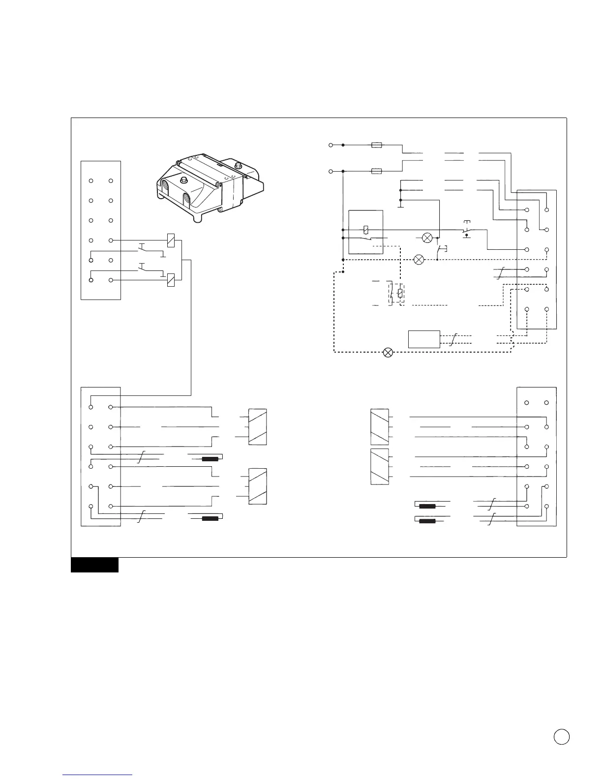
4S/4M Frame-mounted ECU with Supervised-Lock-Control (SLC) Feature
Figure 6.15
Figure 6.15
X3-GREEN
SENSOR
RIGHT REAR
TP
TP
SENSOR
LEFT REAR
6 7
5 8
4 9
3 10
2 11
1 12
OUTLET
COMMON
INLET
OUTLET
COMMON
INLET
ABS VALVE
RIGHT REAR
ABS VALVE
LEFT REAR
X4-BROWN
6 7
5 8
4 9
3 10
2 11
1 12
*DIFFERENTIAL
LOCK
11 2
10 3
9 4
8 5
7 6
ABS VALVE
RIGHT FRONT
ABS VALVE
LEFT FRONT
INLET
COMMON
OUTLET
OUTLET
COMMON
INLET
SENSOR
LEFT FRONT
SENSOR
RIGHT FRONT
TP
TP
X2-BLACK
12 1
GND
12V
IGN
15AMP
5AMP
GND
+12V
+12V
GND
GND
12 1
11 2
10 3
9 4
8 5
7 6
TRAILER WL
RETARDER
TP
TP
J1587 -B
J1587 +A
TO RETARDER
TO RETARDER
30
87A
86
85
ATC/RSC LAMP
BLINK CODE
SWITCH
ATC SWITCH
(OPTIONAL)
ABS LAMP
BLINK CODE
86 85
30 87A
87
X1-GRAY
LAMP
14 AWG
14 AWG
14 AWG
14 AWG
J1939 - H
J1939 - L
DCDL
DCTC
TRANSFER CASE
LOCK
*Differential Lock Solenoid is optional in
some vehicles. If you are replacing the ECU
with a Service Kit, please follow carefully
instructions provided on it.
16 AWG
16 AWG
16 AWG
16 AWG
4012053a
+12V IGN
OR BATTERY

Table of Contents

Related product manuals