EasyManua.ls Logo

Wacker Neuson CT 36

Wacker Neuson CT 36
118 pages
To Next Page IconTo Next Page
To Next Page IconTo Next Page
To Previous Page IconTo Previous Page
To Previous Page IconTo Previous Page
Loading...
Technical Data CT 36 / CT 48
wc_td000141gb.fm 18
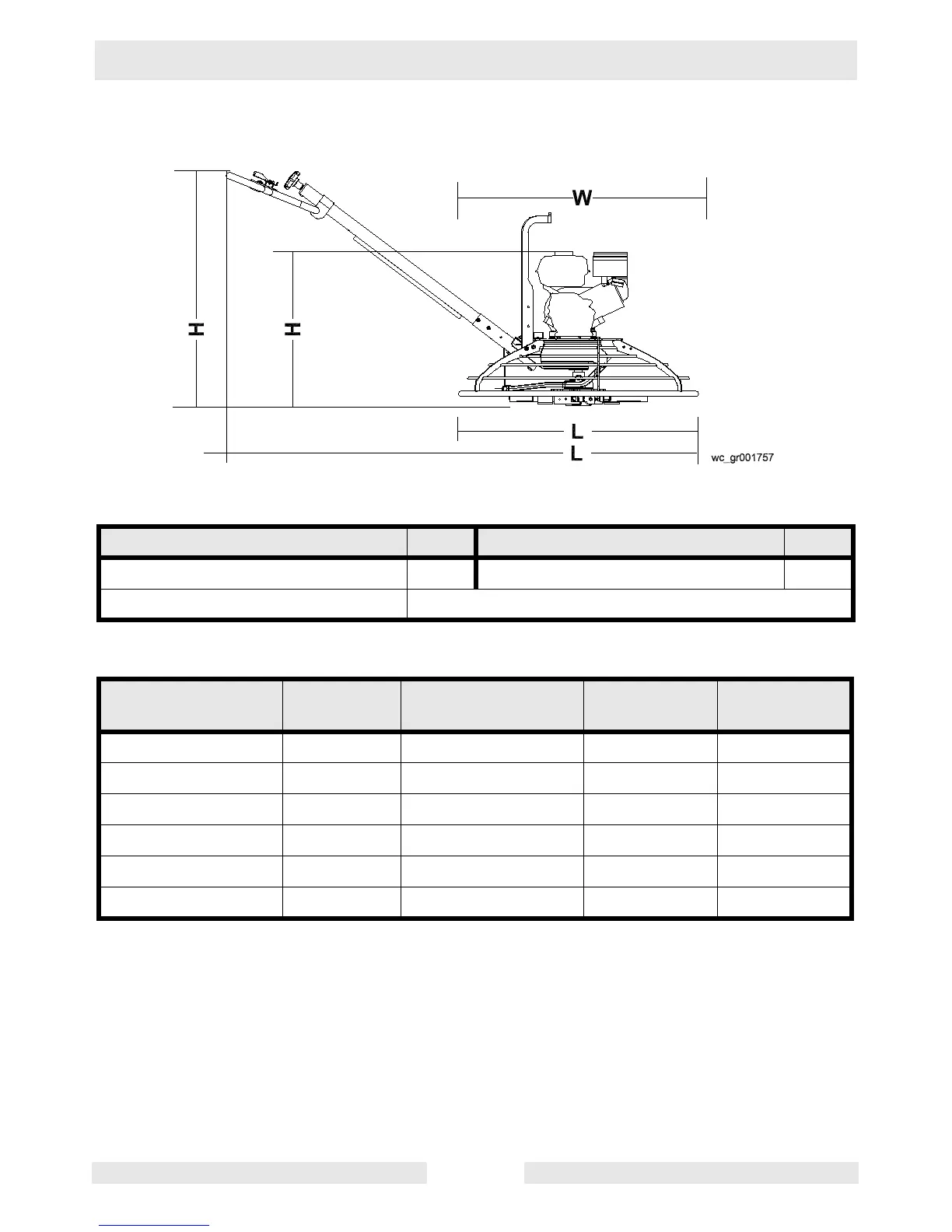
2. Technical Data
2.1 Dimensions and Weight
Guide
*Standard models feature Wacker engine.
Description Ref. Description Ref.
Honda engine* A Variable Speed V
Engine Horse Power 4, 5, 6, 8, 9, 11, 13
Handle Type Item No.
L
mm(in.)
Pitch
Type
Weight
kg (lbs.)
Solid 0159659 1740 (68.5) Twist 10 (21)
Folding 0159660 1740 (68.5) Twist 12 (26.5)
Adjustable/Folding 0164617 1740 (68.5) Twist 13 (28)
Adjustable 0164535 1740 (68.5) Twist 11 (24.5)
Adjustable/Folding 0159661 1740 (68.5) Pro-Shift® 15 (32.5)
Adjustable 0159662 1740 (68.5) Pro-Shift® 13 (29)

Table of Contents

Other manuals for Wacker Neuson CT 36

Related product manuals