EasyManua.ls Logo

Wacker Neuson G 85 - Page 63

Wacker Neuson G 85
92 pages
Print Icon
To Next Page IconTo Next Page
To Next Page IconTo Next Page
To Previous Page IconTo Previous Page
To Previous Page IconTo Previous Page
Loading...
G 50/G 70/G 85 Maintenance
wc_tx000484gb.fm 63
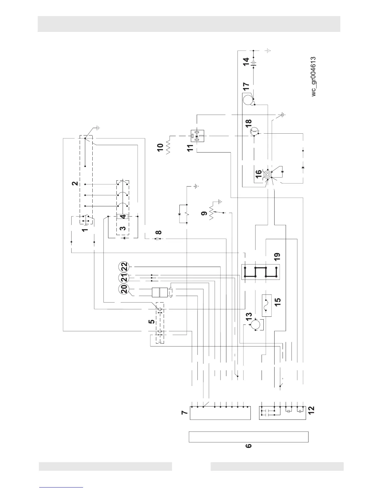
G 50/G 70 Engine Wiring
46
46
GROUND TO
GROUND TO
ENCLOSURE
ENCLOSURE
BOX STUD
BOX STUD
79
79
47
47
R
12
12
13
13
11
11
86
86
85
85
30
30
L0
L0
L3
L3
L2
L2
L2
L2
L1
L1
2
OR
OR
Y
44
44
Y
35
35
47
47
79
79
60
60
LL
LL
B
34
34
35
35
35
35
W
B
RELAY
RELAY
65
65
59
59
+ -
B
+
B
11
11
13
13
D
+
15
15
14
14
B
+
R
R
14
14
B
B
+
50
50
51
51
C
63
63
+
15
15
62
62
Y
R
Y
B
OR
OR
50
50
Y
45
45
B
V
88
88
56
56
87
87
44
44
OR
OR
B
20
20
G
NO
NO
W/L
W/L
W
55
55
54
54
G/Y
G/Y
46
46
V
61
61
34
34
G
NO
NO
R
NC
NC
64
64
R
NC
NC
57
57
61
61
10
10
55
55
55
55
54
54
2
1
B
+
2
20
20
TERM
TERM
BLOCK
BLOCK
17
17
10 A FUSE
10 A FUSE
48
48
51
51
49
49
53
53
88 OIL PRESSURE
88 OIL PRESSURE
TOGGLE
TOGGLE
SWITCH
SWITCH
18
18
52
52
52
52
49
49
+
-
62
62
60
60
57
57
12
12
9
5
53
53
59
59
7
8
6
+
18
18
5
63
63
1
73
73
75
75
64
64
4
3
2
+
17
17
65
65
8
7
87 OIL PRESSURE
87 OIL PRESSURE
CRANK
CRANK
FUEL
FUEL
REMOTE ANNUNCIATOR
REMOTE ANNUNCIATOR
REMOTE ANNUNCIATOR
REMOTE ANNUNCIATOR
BATTERY
BATTERY
PREHEAT
PREHEAT
BATTERY
BATTERY
E-STOP
E-STOP
MAG PICKUP
MAG PICKUP
OIL PRESSURE
OIL PRESSURE
WATER TEMP
WATER TEMP
REMOTE START
REMOTE START
FUEL LEVEL
FUEL LEVEL
BATTERY
BATTERY
BATTERY
BATTERY
56
56
3
OR
OR
W
R
R
R
R
R
R
R
Y
B
B
GR
GR
G
Y
SH
SH
W/L
W/L
Y
OR
OR
W/V
W/V
B
B
R
T
T
R
R
GR
GR
V
V
Y

Table of Contents

Other manuals for Wacker Neuson G 85

Related product manuals