EasyManua.ls Logo

Walker Edison BTOF - AI-BTOF Model (1)

Walker Edison BTOF
32 pages
Print Icon
To Next Page IconTo Next Page
To Next Page IconTo Next Page
To Previous Page IconTo Previous Page
To Previous Page IconTo Previous Page
Loading...
Step 2
(EN)
(FR)
(ESP)
(DE)
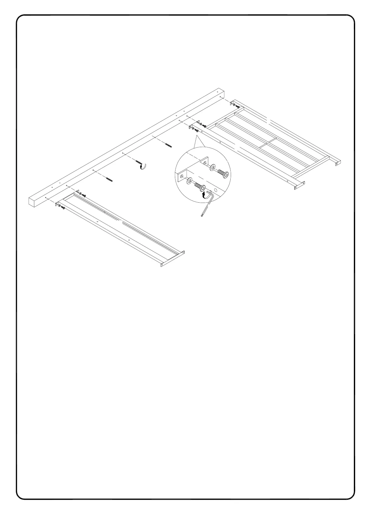
Attach double Crossbar (G) and Crossbar (H) with guardrail (I) to post (B) using extra-small bolts
(1) and small washers (7) with Hex key (13). Insert double-headed bolt (4) into part (B) .
Fixez la double traverse (G) et la traverse (H) avec le garde-corps (I) au poteau (B) en utilisant les
très petits boulons (1) avec les petites rondelles (7) et une clé hexagonale (13). Insérez le boulon
à double tête (4) dans la pièce (B).
Fije el doble travesaño (G) y el travesaño (H) con barandilla (I) al poste (B) usando los pernos
extra pequeños (1) y las arandelas pequeñas (7) con la llave hexagonal (13).
Inserte el perno de doble cabeza (4) en la parte (B).
Befestigen Sie die doppelte Querstange (G) und die Querstange (H) mit der Leitplanke (I) an die
Pfosten (A, B) mit extra kleinen Bolzen (1) und kleinen Unterlegscheiben (7) durch den
Inbusschlüssel (13). Stecken Sie den Doppelkopfbolzen (4) in das Teil (B) ein.
P.11
Copyright
©
2009 by Walker Edison Furniture Co., LLC. All rights reserved.
7
1
13
7
1
4
4
4
H
I
G
B

Related product manuals