EasyManua.ls Logo

Walker Edison BTOF - AI-BTOF Model (1)

Walker Edison BTOF
32 pages
Print Icon
To Next Page IconTo Next Page
To Next Page IconTo Next Page
To Previous Page IconTo Previous Page
To Previous Page IconTo Previous Page
Loading...
Step 9
(EN)
(FR)
(ESP)
(DE)
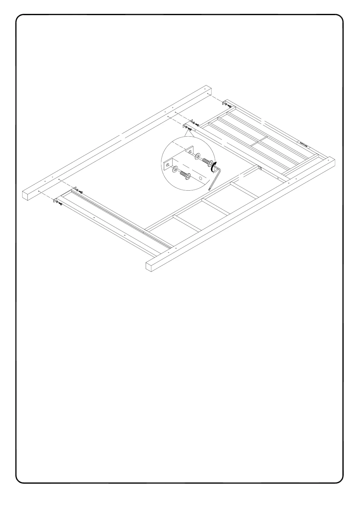
Using bolt (1) attach small washer (7) into parts (H,I,U) to part (C) with hex key (13).
Utilisez le boulon (1) pour fixer les petites rondelles (7) dans la pièce (H,I,U) à la pièce (C) avec la
clé hexagonale (13).
Con el perno (1), coloque la pequeña arandela (7) en las partes (H, I, U) de la parte (C) con la
llave hexagonal (13).
Befestigen Sie die kleine Unterlegscheibe (7) in die Teile (H, I, U) an das Teil(C) mit dem Bolzen
(1) durch den Inbusschlüssel (13).
P.18
Copyright
©
2009 by Walker Edison Furniture Co., LLC. All rights reserved.
F
7
1
13
7
1
H
I
U
C

Related product manuals