EasyManua.ls Logo

WarmFlow Agentis E26 - 5 Technical Details; Dimensions; B-Series (Boilerhouse) B21, B26 & B33

Default Icon
136 pages
Print Icon
To Next Page IconTo Next Page
To Next Page IconTo Next Page
To Previous Page IconTo Previous Page
To Previous Page IconTo Previous Page
Loading...
Page 39
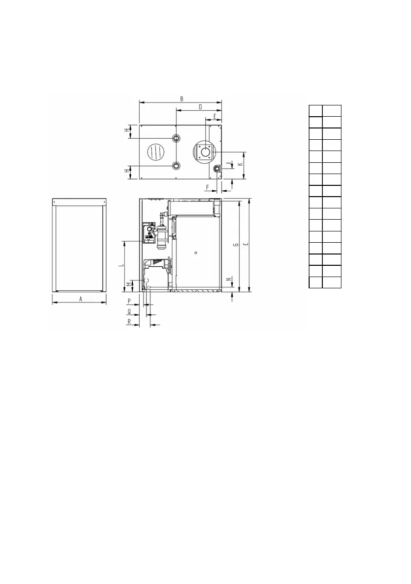
5 TECHNICAL DETAILS
5.1 Dimensions
5.1.1 B-Series (Boilerhouse) B21, B26 & B33
A
395
B
600
C
697
D
332
E
118
F
34
G
676
H
97
J
77
K
197
L
383
M
97
N
47
P
30
Q
50
R
80

Table of Contents

Related product manuals