EasyManua.ls Logo

Washtech XP - Assembly & Electrical Diagrams; Wiring Tray Assembly

Washtech XP
40 pages
Print Icon
To Next Page IconTo Next Page
To Next Page IconTo Next Page
To Previous Page IconTo Previous Page
To Previous Page IconTo Previous Page
Loading...
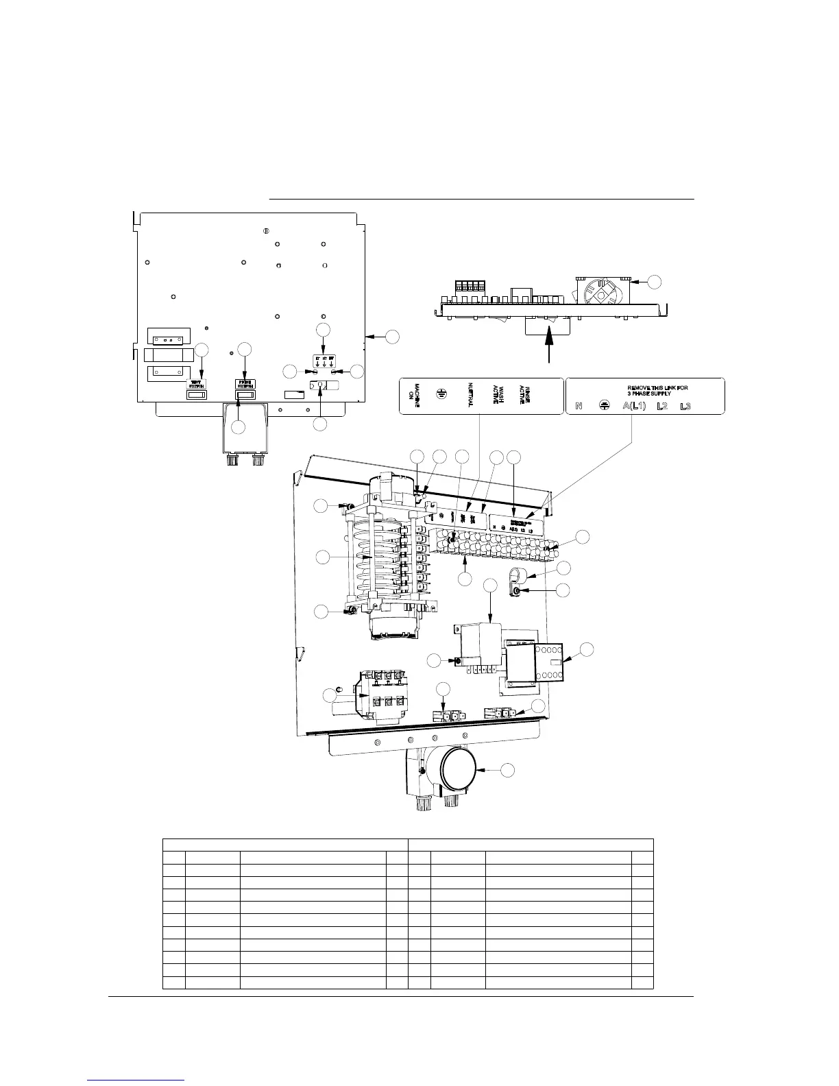
PLAN
A
PERSPECTIVE VIEW
Parts List
ITEM PART NUMBER DESCRIPTION QTY
1 32822 TIMER4907DV(180/6 SEC)3 CYCLE 1
23035
SWITCH SINGLE POLE BIASED BLACK
2
3 8816 MS RH BRASS 3/16 X 3/4 1
48151
NUT HX BRASS 3/16" PRESSED
1
5
3229 TERMINAL STRIP 12 WAY 1
63020
3 POLE THERMOSTAT
1
7 8800 MS PAN POZI ZP M4x6 2
8 600 30131 P CLIP 20.8mm 1
9 8801 MS PAN POZI ZP M4x12 5
10 326 10216 M2 (3) WIRING TRAY SUB ASSEMBLY 1
Parts List
ITEM PART NUMBER DESCRIPTION QTY
11 REF LABEL TEST SWITCH 1
12 8802
MS PAN POZI ZP M4x25
2
13 600 80052 MS RH ZP M3x6 2
14 REF
CHEMICAL CONNECTIONS LABEL
1
15 REF POWER CONNECTIONS LABEL 1
16 600 30223
JQX-12F POWER RELAY
1
17 Label LABEL THERMOSTAT ADJUSTMENTS 1
18 600 30337 CONTACTOR 20A 3NO/NC 230-240V 1
19 600 30094-2 PERI PUMP 1.5L/H SEKO-KIT 1
20 REF LABEL PRIME SWITCH 1
A
208 10046 23/09/2013
3-A
XP WASHTECH WIRING TRAY ASSY
REV
Assembly Diagrams
1
2
1
7 7
8
9
11
10
9
9
6
3
12
12
6
14
15
16
2
13
5
18
17
19
20
2
4
Service Manual XP-2
24
Revision 1C

Related product manuals