EasyManua.ls Logo

Wayne Reliance G6101D - Page 14

Wayne Reliance G6101D
44 pages
Print Icon
To Next Page IconTo Next Page
To Next Page IconTo Next Page
To Previous Page IconTo Previous Page
To Previous Page IconTo Previous Page
Loading...
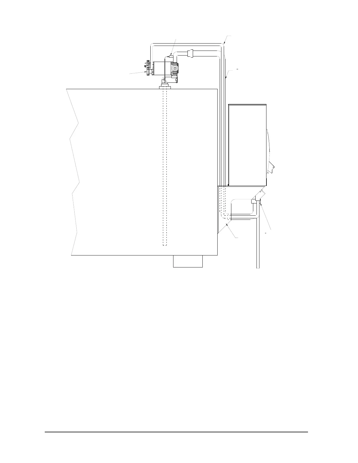
10 920943 Rev E July 2014
Vacuum
Breaker
Suction Pump
with Vacuum
Breaker
1-
1
2
" Union-Top
Emergency
Shear Valve
Electrical
Conduit
Model G6101D
Dispenser
Shelf
Bracket
1-
1
2
" Supply
Line
Figure 3-2 Suction Pump Site Layout

Table of Contents

Related product manuals