EasyManua.ls Logo

Webasto Thermo Top T

Webasto Thermo Top T
47 pages
Go to English
To Next Page IconTo Next Page
To Next Page IconTo Next Page
To Previous Page IconTo Previous Page
To Previous Page IconTo Previous Page
Loading...
M
M
M
-
+
(75) 15
30
rt
ge
OUT
sw
br
br
br
sw
Heizen
Lüften
bl
vi
+15
87a
86
85
87
30
31
I max. = 0,5 A
gn/ws
rt
rt
rt
br
br
4
3
2
1
2
1
6
5
2
1
2
1
1
1
2
2
ϑ
ϑ
ϑ
1
2
Y1
P
X9
X9
H1
B2
A1
X14
F1
F2
F3
K3
B3
M1
X17
X18
M2
X19
B1
A2
X14
X20
X21
X15
A3
1
3
2
S5
X16
E
M3
S2
S1
6
4
1
2
3
5
1
2
1
2
1
1
1
2
2
2
X14
X15
X16
X18
X19
A
B
C
X17
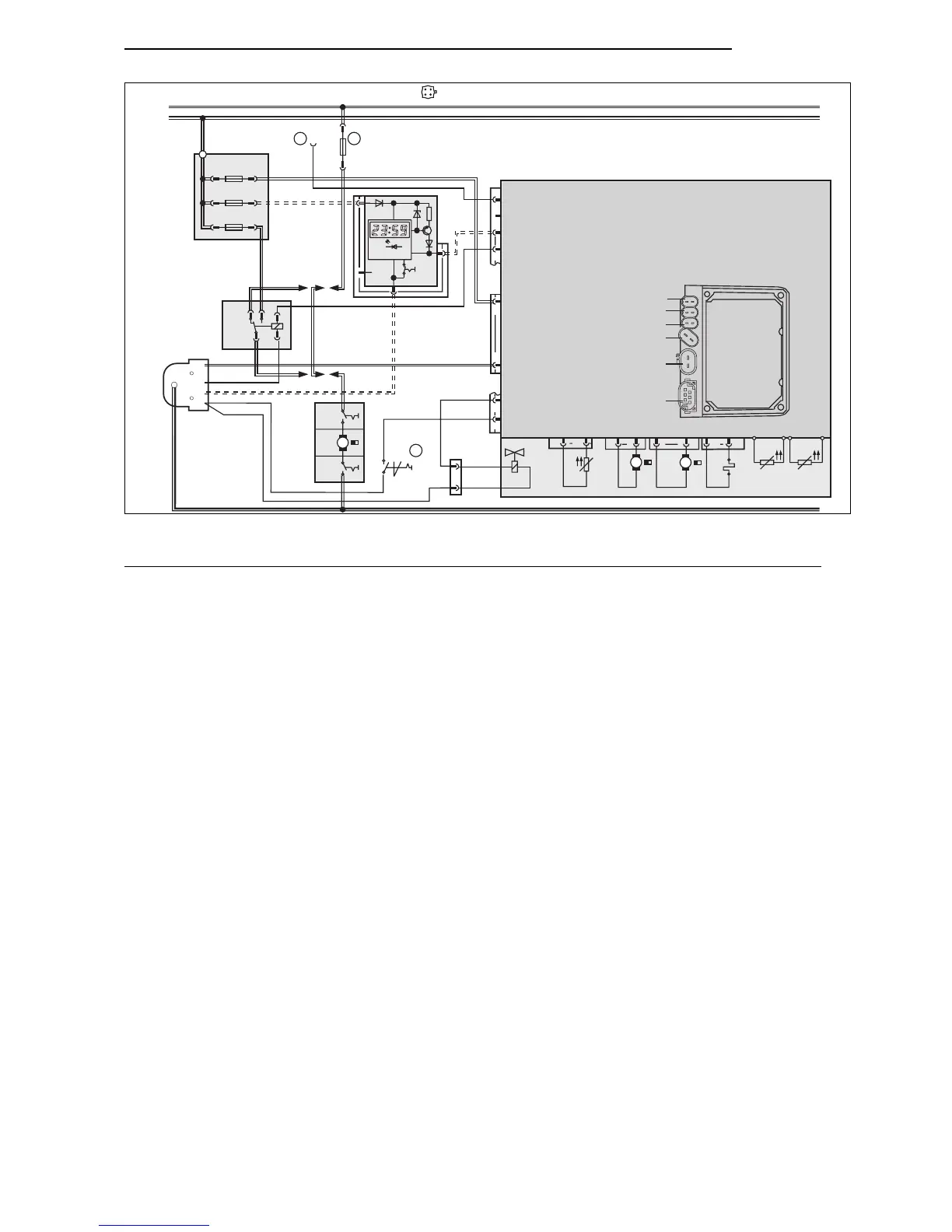
Fig. 15: Kopplingsschema
Thermo Top , Thermo Top T och Tele Thermo Top
, 12 V tidur (komponentförteckning se sidan 38)
Thermo Top
39

Other manuals for Webasto Thermo Top T

Related product manuals