EasyManua.ls Logo

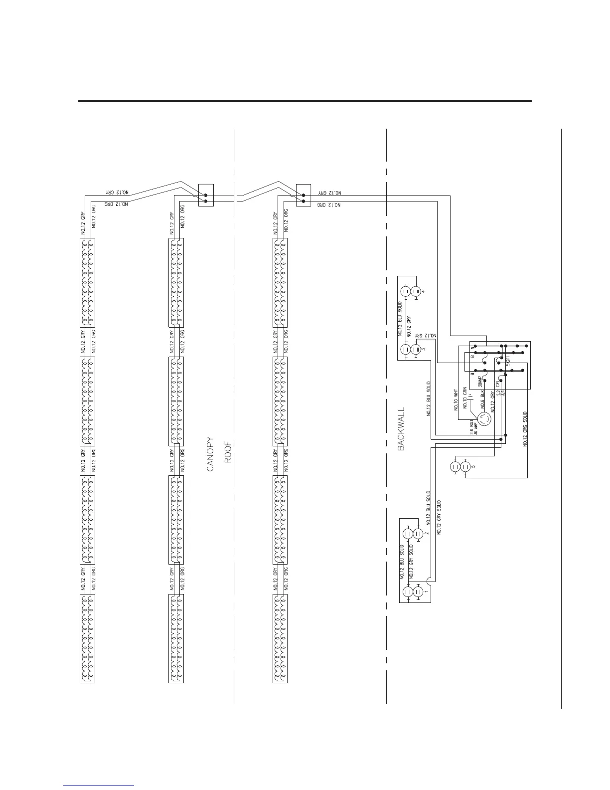
Wenger Showmobile - ELECTRICAL SCHEMATIC; 110 VOLT STANDARD WIRING

Wenger Showmobile
36 pages
Print Icon
To Next Page IconTo Next Page
To Next Page IconTo Next Page
To Previous Page IconTo Previous Page
To Previous Page IconTo Previous Page
Loading...
30
ELECTRICAL SCHEMATIC
110 Volt (Standard)

Related product manuals