EasyManua.ls Logo

widos PSM 20 - Page 39

widos PSM 20
41 pages
Print Icon
To Next Page IconTo Next Page
To Next Page IconTo Next Page
To Previous Page IconTo Previous Page
To Previous Page IconTo Previous Page
Loading...
Kunststoffschweißtechnik
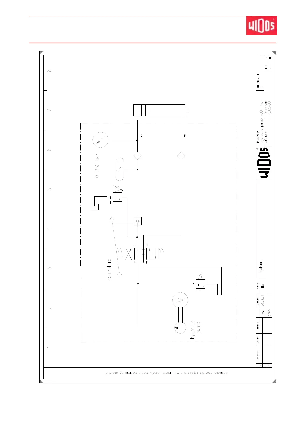
Wiring diagrams Chapter 8
10.12.2013 Working instructions WIDOS PSM 20 Page 29 of 31

Related product manuals