EasyManua.ls Logo

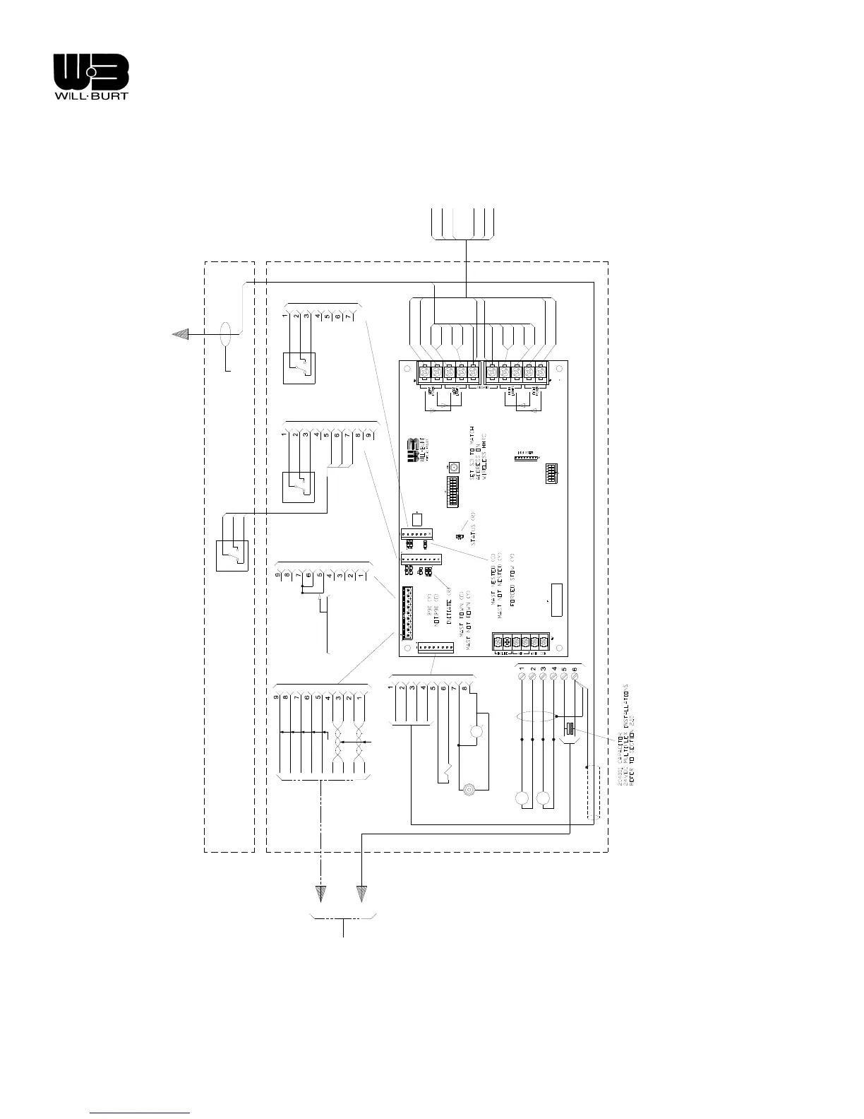
Will Burt Night Scan Chief - Figure 4-8 Night Scan Chief Base Wiring

Will Burt Night Scan Chief
65 pages
Print Icon
To Next Page IconTo Next Page
To Next Page IconTo Next Page
To Previous Page IconTo Previous Page
To Previous Page IconTo Previous Page
Loading...
Night Scan Chief
BLK
WHT
BLK
RED
GRY
VIO
GRN
|13|
|12|
|11|
|14|
DOWN
BLK
RED
BLU
WHT
BLK
MAST DOWN
BRN
BLU
BLK
BRN
YEL/GRN
|6|
|3|
|5|
L2
L1
|4|
L1
L2
|9|
|7|
|10|
YEL/GRN
|8|
INTERNAL COIL CABLE
MAST
BLK
RED
WHT
MAST @ 0
LOOK-UP LIGHT
(OPT)
GND
L2
L1
L2
L1
LEFT LIGHT POWER
RIGHT LIGHT POWER
TB3
J5
J5
J4
J4
J3
J3
J2
J2
TB1
TB2
BASE
18 GA
20 GA TWISTED PAIRS
SHIELD
VALVE
GND
GND
GND
ANTENNA
S3
BLK
RED
BLK 1
WHT 2
BLK 2
WHT 1
INCLINATION MOTOR
AIR COMPRESSOR
TB3
4206101 CABLE
CUSTOMER
SUPPLIED
S2
MAST@90
BLU
BRN
10 GA
WHT/BLK
WHT/RED
BEEPER
+
_
M
M
BRN
BLU
ORG
BLK
4032504 16 FT CABLE
4032505 30 FT CABLE
4032506 50 FT CABLE
TO RCP
O
JUNCTION
BOX
J4
WITH NO J-BOX
APPLICATIONS
REMOVE JUMPER
IF PARKING BRAKE
INTERLOCK IS USED.
CLOSED WHEN
BRAKE "ON"
+
Figure 4-8 Night Scan Chief Base Wiring
Revision 1 4-8

Table of Contents

Related product manuals