EasyManua.ls Logo

Williams 4007332 - Installing Your Furnace

Williams 4007332
48 pages
Print Icon
To Next Page IconTo Next Page
To Next Page IconTo Next Page
To Previous Page IconTo Previous Page
To Previous Page IconTo Previous Page
Loading...
Installing Your Furnace
8
11. Be sure to provide adequate clearance and service access.
The front of the furnace must face the open room.
12. Choose a location for the thermostat about 5-feet above the
floor on an inside wall. The thermostat wire supplied with your
furnace is 20-feet long, which should be enough to run up
through the attic of a single-story home, so the thermostat can
be a maximum of 16-feet from the furnace measure in a
straight line, or about 8-feet from the furnace if the wire is run
under the floor. Use heavier wire size if more than 20-feet of
wire is required. The thermostat should be sensing average
room temperature. Avoid the following:
HOT SPOTS: COLDSPOTS:
Concealed pipes or ducts Concealed pipes or ducts
Fireplaces Stairwells drafts
Registers Doors drafts
TV sets Unheated rooms on the
Radios other side of the wall
Lamps DEAD SPOTS
Direct sunlight Behind doors
Kitchen Corners, and alcoves
13. After picking a location that meets the requirements, inspect
the wall, floor and outside areas. Make sure there are no
pipes, wiring, or anything else that would interfere with
furnace, vent, or thermostat installation. If required, move
them or pick a new location.
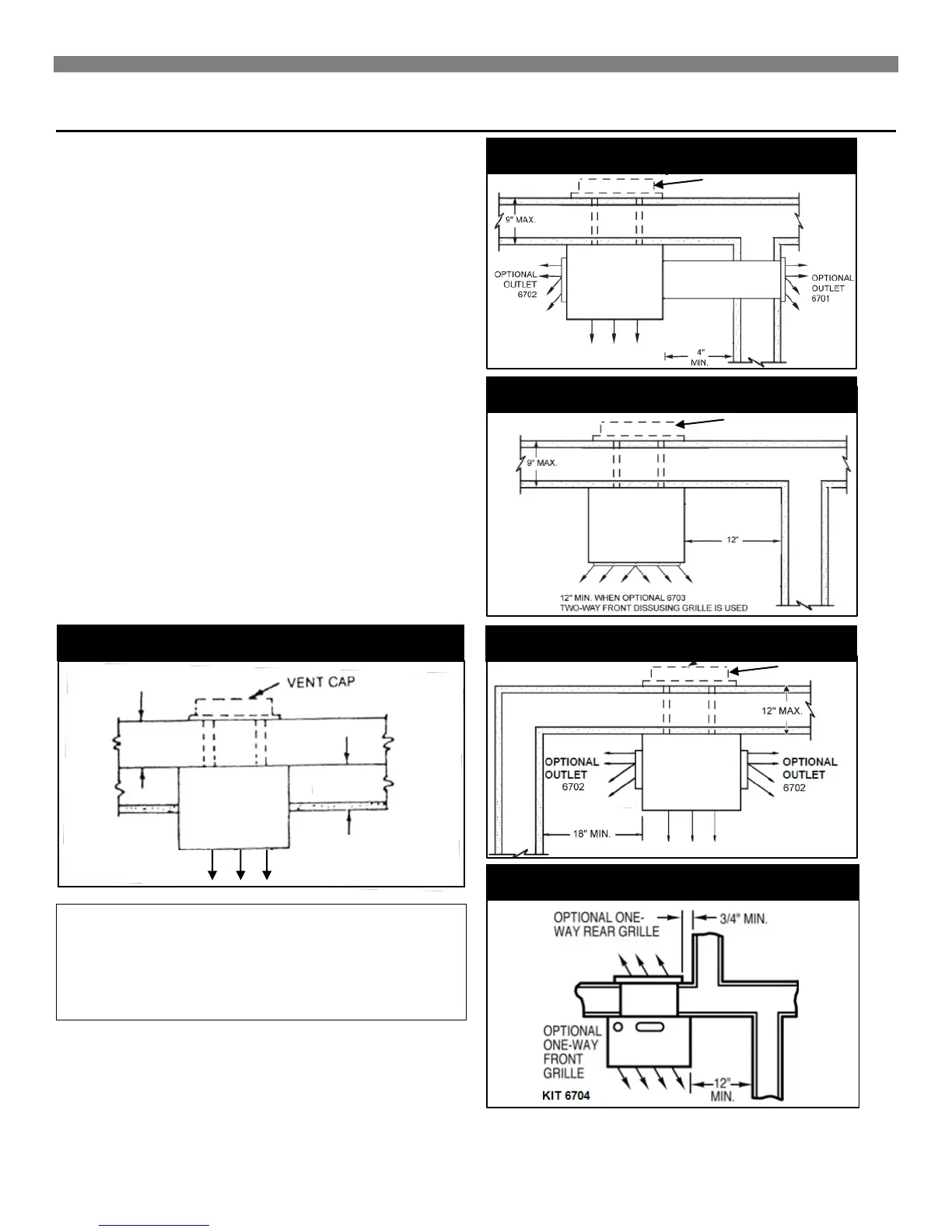
RECESSED INSTALLATION CLEARANCE
NOTE: A portion of the furnace that is recessed
into a wall up to 10" maximum recess may have (0)
zero inch clearance to combustibles. (See Fig. 3).
All other clearances for the unrecessed portion
must be observed.
FIGURE 3 Recessed Installation Clearance
FIGURE 4
FIGURE 5
FIGURE 6
9" MAX.
3/4" MIN.
10" MAX.
RECESS
VENT CAP
VENT CAP
VENT CAP
FIGURE 7

Related product manuals