EasyManua.ls Logo

Wolf 30 - Page 6

Wolf 30
24 pages
Print Icon
To Next Page IconTo Next Page
To Next Page IconTo Next Page
To Previous Page IconTo Previous Page
To Previous Page IconTo Previous Page
Loading...
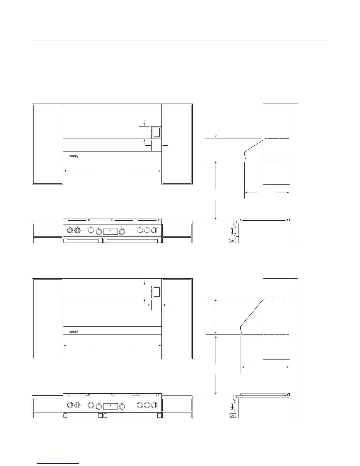
Pro Wall Hood Specifications 6
E
6
"
(152)
5
"
(127)
L
OCATION OF ELECTRICAL
WIDTH OF HOOD
30" (762) TO 36" (914)
T
O COUNTERTOP
1
0"
(254)
HEIGHT
OF HOOD
22" (559)
DEPTH OF HOOD
Installation Specifications
LOW-PROFILE WALL HOODS
E
6"
(152)
5"
(127)
LOCATION OF ELECTRICAL
WIDTH OF HOOD
30" (762) TO 36" (914)
TO COUNTERTOP
18" (457)
HEIGHT
OF HOOD
24" (610) OR
27" (686)
DEPTH OF HOOD
24" AND 27" DEEP WALL HOODS

Other manuals for Wolf 30

Related product manuals