EasyManua.ls Logo

Wolf CSO24 - Theory of Operation

Wolf CSO24
16 pages
Print Icon
To Next Page IconTo Next Page
To Next Page IconTo Next Page
To Previous Page IconTo Previous Page
To Previous Page IconTo Previous Page
Loading...
Convection Steam Oven Specifications 11
wolfappliance.com/specs
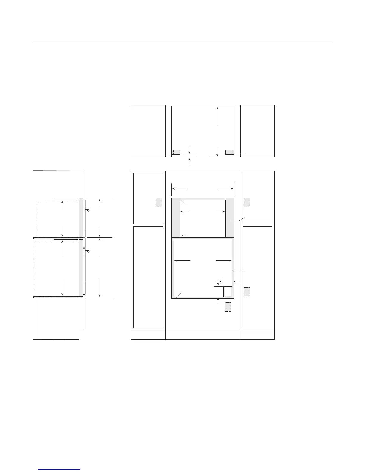
Flush Inset Installation
CONVECTION STEAM OVEN AND E SERIES OVEN
S
IDE CLEATS
24
3
/4"*
(
629) min
FLUSH INSET
DEPTH
*For black glass model, increase dimension by
1
/4" (6).
NOTES: Minimum base support for steam oven 100 lbs
(45 kg) and E series oven 250 lbs (113 kg).
Electrical supply for steam oven must be located in adjacent cabinet within 3'
(.9 m) of opening.
Location of electrical supply within E series oven opening may require additional cabinet depth.
Cleats may be visible and should be finished to match cabinetry.
Dashed line represents profile of unit.
FRONT VIEWSIDE VIEW
TOP VIEW
30
3
/8" (772) min
F
LUSH INSET WIDTH
17
11
/16" (449)
O
PENING
H
EIGHT
18
1
/8"
(
460) min
F
LUSH INSET
HEIGHT
28
1
/2" (724)
E SERIES OVEN
OPENING WIDTH
7
/16" (11)
BOTTOM CLEAT
1" (25)
SIDE CLEATS
5"
(127)
4"
(102)
E
E
E
27
3
/16"
(691)
OPENING
HEIGHT
28
1
/4"
(718) min
FLUSH INSET
HEIGHT
22
1
/4" (
565)
STEAM OVEN
O
PENING WIDTH
5
/8" (16) CLEAT
4
1
/16" (103)
SIDE CLEATS
EE
1" (
25)
*
7
/1
6
"(
11)
TOP CLEAT

Other manuals for Wolf CSO24

Related product manuals