EasyManua.ls Logo

Wolf CSO24 - Page 9

Wolf CSO24
16 pages
Print Icon
To Next Page IconTo Next Page
To Next Page IconTo Next Page
To Previous Page IconTo Previous Page
To Previous Page IconTo Previous Page
Loading...
Convection Steam Oven Specifications 9
wolfappliance.com/specs
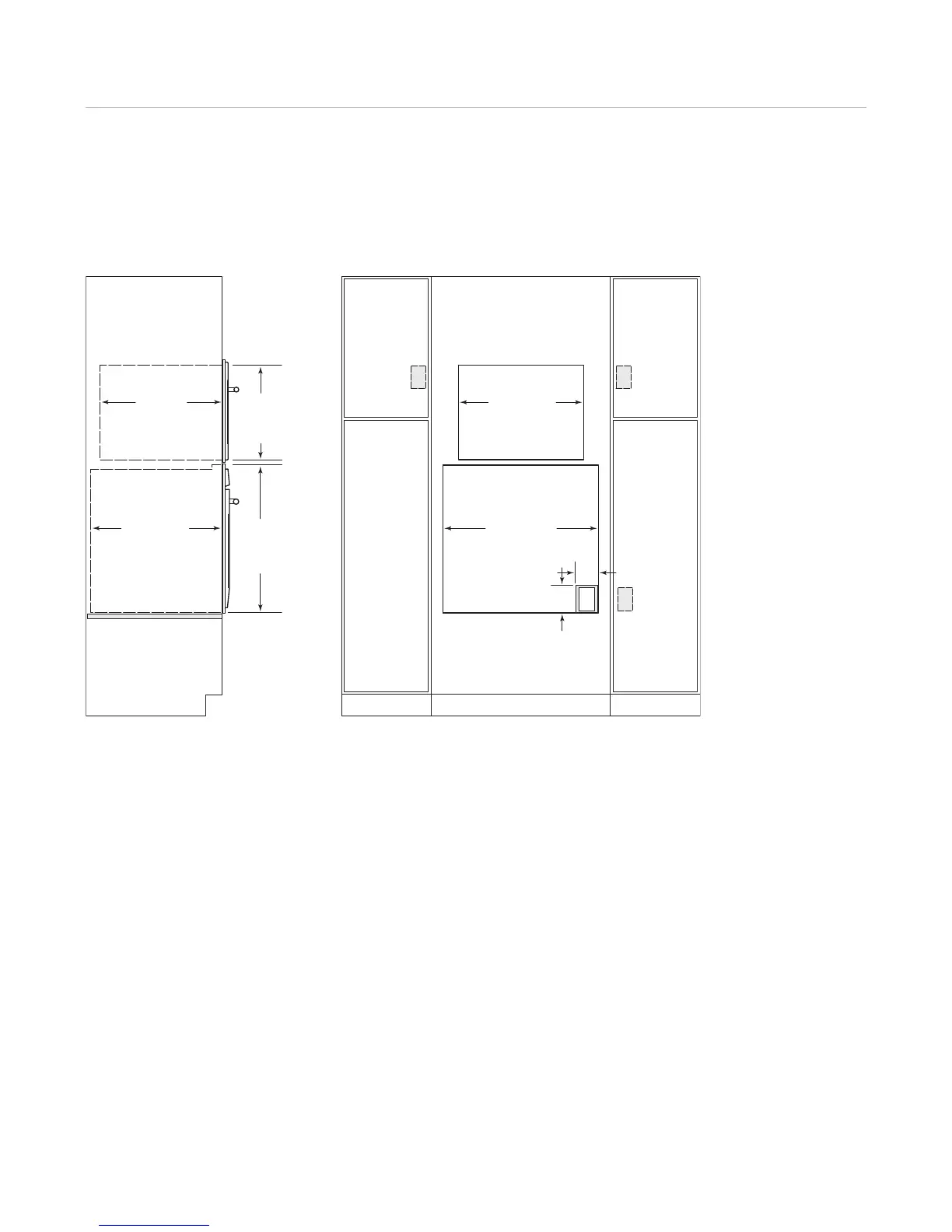
Standard Installation
CONVECTION STEAM OVEN AND L SERIES OVEN
FRONT VIEWSIDE VIEW
28
1
/2" (
724)
L SERIES OVEN
OPENING WIDTH
E
E
5"
(127)
4"
(102)
NOTES: Minimum base support for steam oven 100 lbs (45 kg) and L series oven 250 lbs (113 kg).
Electrical supply for steam oven must be located in adjacent cabinet within 3'
(.9 m) of opening.
Location of electrical supply within L series oven opening may require additional cabinet depth.
Dashed line represents profile of unit.
24" (
610) min
O
PENING DEPTH
27
3
/16"
(
691)
OPENING
HEIGHT
3
/1
6
"
(5) min
1
7
1
1
/1
6
"
(
449)
OPENING
HEIGHT
21
9
/1
6
"
(
548) min
O
PENING DEPTH
22
1
/4" (565)
S
TEAM OVEN
O
PENING WIDTH
EE

Other manuals for Wolf CSO24

Related product manuals