EasyManua.ls Logo

Wolf DF30 - Installation Dimensions and Clearances

Wolf DF30
108 pages
Print Icon
To Next Page IconTo Next Page
To Next Page IconTo Next Page
To Previous Page IconTo Previous Page
To Previous Page IconTo Previous Page
Loading...
Installation Information
2-5
DDuuaall FFuueell RRaannggee
E
LOCATION OF
ELECTRICAL
36"
(91.4)
36
7
/8"
(93.7) TO
COOKING
SURFAC
E
30" min (76.2)
COOKING SURFACE
TO COMBUSTIBLE
CONSTRUCTION
44" min (91.4)
TO CHARBR
OILER
30" min (76.2)
TO BOTTOM OF
VENTILA
TION HOOD
VENTILATION HOOD
COMBUSTIBLE CONSTR
UCTION
18" min (45.7)
TO COOKING
SURFACE
13" max
(33.0)
LOCATION OF GAS AND
ELECTRICAL EXTENDS 3"
ON FLOOR FROM BACK WALL
ISLAND INSTALLATIONS: 12" MINIMUM
CLEARANCE FROM BACK OF RANGE
TO COMBUSTIBLE CONSTR
UCTION
B
FINISHED ROUGH OPENING WIDTH
COOKING SURFAC
E
C
3
1
/4"
(8.3)
D
LOCATION
OF GAS
SUPPL
Y
6" min
(15.2)
TO WALL
35
7
/8"
(91.1)
36
7
/8" (93.7)
TO COOKING
SURFACE
36
7
/8"
(93.7)
OVERALL
HEIGHT
A
O
VERALL WIDTH
25"
(63.5)
24
1
/4"
(61.6)
27
1
/2"
(69.9)
29
1
/2" (74.9)
OVERALL DEPTH
LEGS AND CASTERS ALLOW
2
1
/8"
HEIGHT ADJUSTMENT
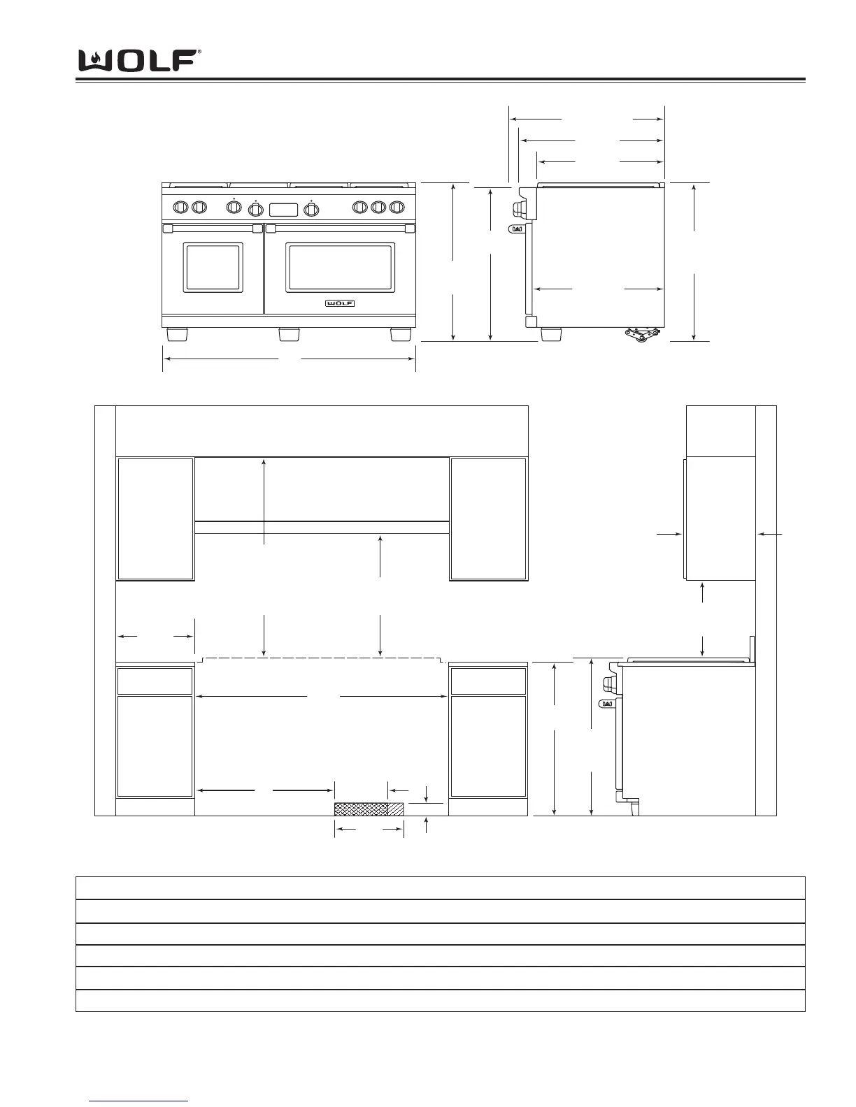
Installation Dimensions
I
nstallation Dimensions 30" Range 36" Range 48" Range 60" Range
A *Overall width of range 29 7/8" 35 7/8" 47 7/8" 60 1/8"
B Finished rough opening width 30" 36" 48" 60 1/4"
C Dimension from edge of rough opening 8 1/2" 8 1/2" 24" 31"
D Location of gas supply 10" 15" 10" 10"
E Location of electrical 13" 19" 13" 13"
*width may vary to +1/8"
Figure 3-3. Dimension Chart

Table of Contents

Related product manuals