EasyManua.ls Logo

Wolf DF30 - Page 95

Wolf DF30
108 pages
Print Icon
To Next Page IconTo Next Page
To Next Page IconTo Next Page
To Previous Page IconTo Previous Page
To Previous Page IconTo Previous Page
Loading...
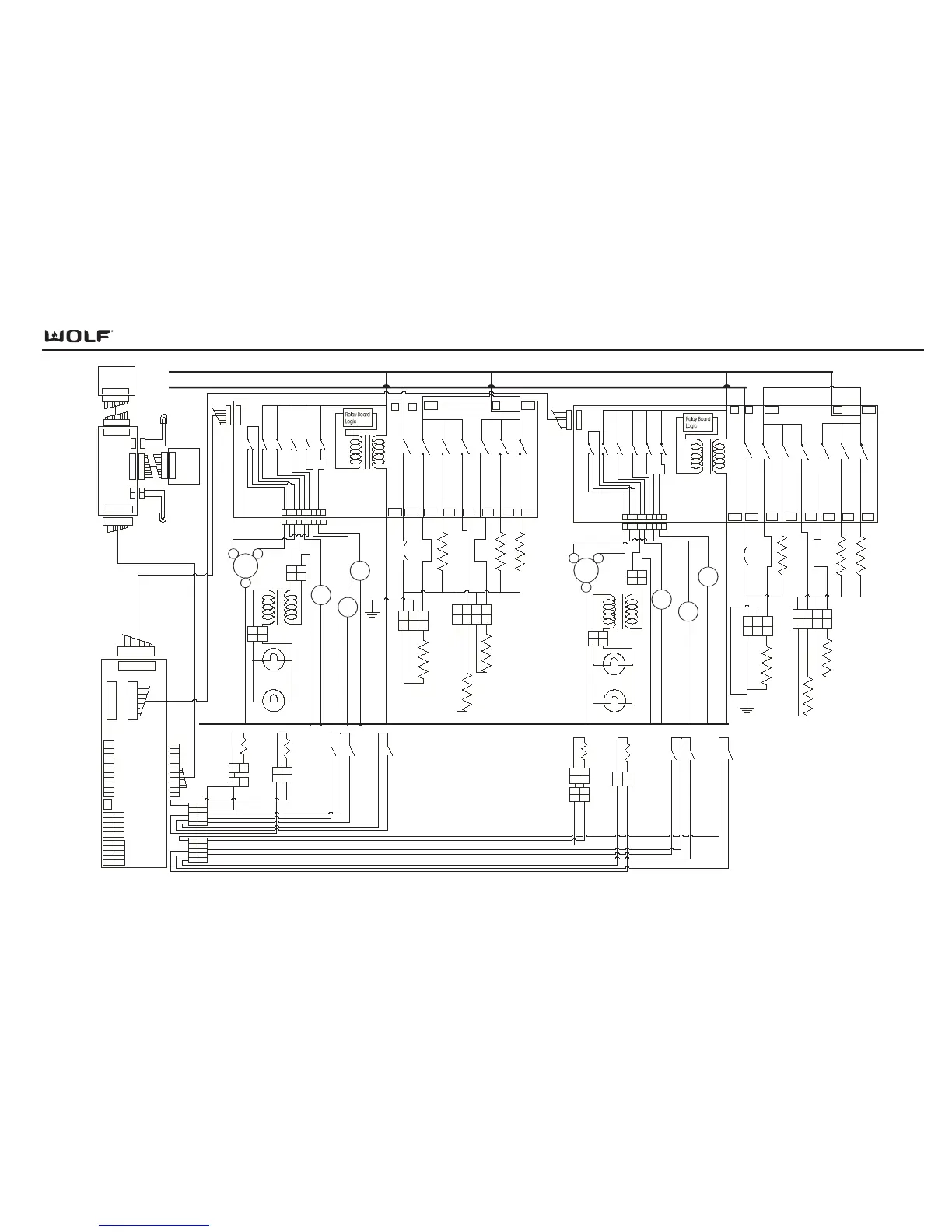
Wiring Diagrams
DDuuaall FFuueell RRaannggeess
7-15
L1
L2
30" R ight
Relay
Board
K1
NO
K2
NO
K3K4K5K6
NO
NO
NONO
K7
NO
K14
1
22
1
22
12
3
45
6
78
9
1234
13
Molex S abre
Connector
Pizza
E lement
R eceptacl e
Pizza El.
3500W
240V
Outer B ak e El .
1000W
240V
Inner B ake El.
1200W
240V
Br oil El.
3600W
240V
R Cvt El.
2400W
240V
L Cvt El
2400W
240V
Bi-metal
Thermostat
(T hermo
Limiter)
1
4
2
Cooli ng
Fan Motor
L.Cvt
Fan
R. Cvt
Fan
Motor
Door
Lock
20W Oven
Light
20W Oven
Light
NEU T R AL
122
1
2
3
4
5
6
7
8
9
G
GND
12
Meat
Probe
Sensor
Meat
Probe
R eceptical
RTD
Sensor
12
Molex
Connector
Amp
Connector
MDL
Unlatched
Switch
MDL
Latched
Switch
Door
Switch
12
12
2 pin
Amp Conn.
2 pin
Amp
Conn
1
1
2
2
1234
L1
L2
L1-B L1-A
DLB
Pr6
Pr5 Pr4 Pr3 Pr2 Pr1
J11A
J4
J1
NO NO NO
K9K10K11
K12
K13
NONONONONO
NO
12345
6
789
J3
2V LE D
Right
Mode/temp
knob
ECH
Assembly
12
12
110
110
110
110
Left
Mode/temp
knob
12
12
J1
J8
J7
J2
2V LE D
J6
110
110
110
110
1
2
3
4
5
6
8
9
7
19
19
1
2
3
4
5
6
8
9
10
J2
1
2
3
4
5
6
8
9
10
J3
1
2
3
4
9
5
6
8
10
1
2
3
4
9
5
6
8
10
12
2
1
Relay
Board
K1
NO
K2
NO
K3
NO
K7
NO
K14
1
22
1
22
12
3
45
6
78
9
1234
Molex S abre
Connector
Inner Bake E l.
1450W
240V
Br oil El.
3600W
240V
L Cvt El
2400W
240V
1
4
2
Cooli ng
Fan Motor
L.Cvt
Fan
Motor
Door
Lock
20W Oven
Light
20W Oven
Light
12
Meat
Probe
Sensor
Meat
Probe
R eceptical
RTD
Sensor
12
Molex
Connector
Amp
Connector
MDL
Unlatched
Switch
MDL
Latched
Switch
Door
Switch
12
12
2 pin
Amp Conn.
2 pin
Amp
Conn
1
1
2
2
1234
W olf Appliance
Company, L L C
60" D ual F uel Oven
Schematic Diagram
L1L1 L2 L1-B L1-A
NEU DLB Pr3 Pr2 Pr1
J1
NO NO NO
K9K10K11K12K13
NONONONONO
NO
12345
6
789
J3
12
2
1
122
J5
122
122
Oven
Contr oller
Bi-metal
Thermostat
R. Cvt
Fan
Outer B ak e El .
1000W
240V
13
Pizza
E lement
3500W
240V
G
R eceptacl e
Pr6 Pr5 Pr4
K4K5K6
NONONO
R Cvt El
2400W
240V
NEU
L1
Oven
Oven
30" L eft
GND

Table of Contents

Related product manuals