EasyManua.ls Logo

Wolf FGB-K-35 - Page 73

Wolf FGB-K-35
104 pages
Print Icon
To Next Page IconTo Next Page
To Next Page IconTo Next Page
To Previous Page IconTo Previous Page
To Previous Page IconTo Previous Page
Loading...
3064458_201811
73
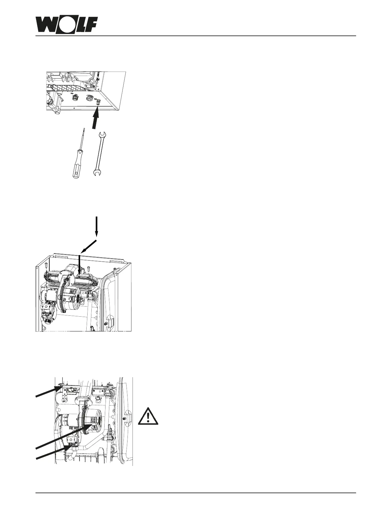
28.9. Assembling the heat exchanger
- Close the drain valve
- For lling, see chapters 18 and 19
- Vent the condensing boiler
- Open the ow and return maintenance shut-off valves
- Replace the burner gasket
- Insert the burner horizontally
- Place the combustion chamber cover on the combustion chamber and evenly
pull it forwards
- Tighten the screws on the combustion chamber cover
- Fit the inlet pipe
- Re-connect the following plug-in connections:
- Fan
- Gas combination valve
- Ignition / IO electrode
Insert with small twisting movements
Filling the condensing boiler on
the heating water side
Fitting the combustion chamber
cover
Fitting the plug-in connections

Related product manuals