EasyManua.ls Logo

Wolf FGB-K-35 - Dimensions and Technical Specifications

Wolf FGB-K-35
104 pages
Print Icon
To Next Page IconTo Next Page
To Next Page IconTo Next Page
To Previous Page IconTo Previous Page
To Previous Page IconTo Previous Page
Loading...
8
3064458_201811
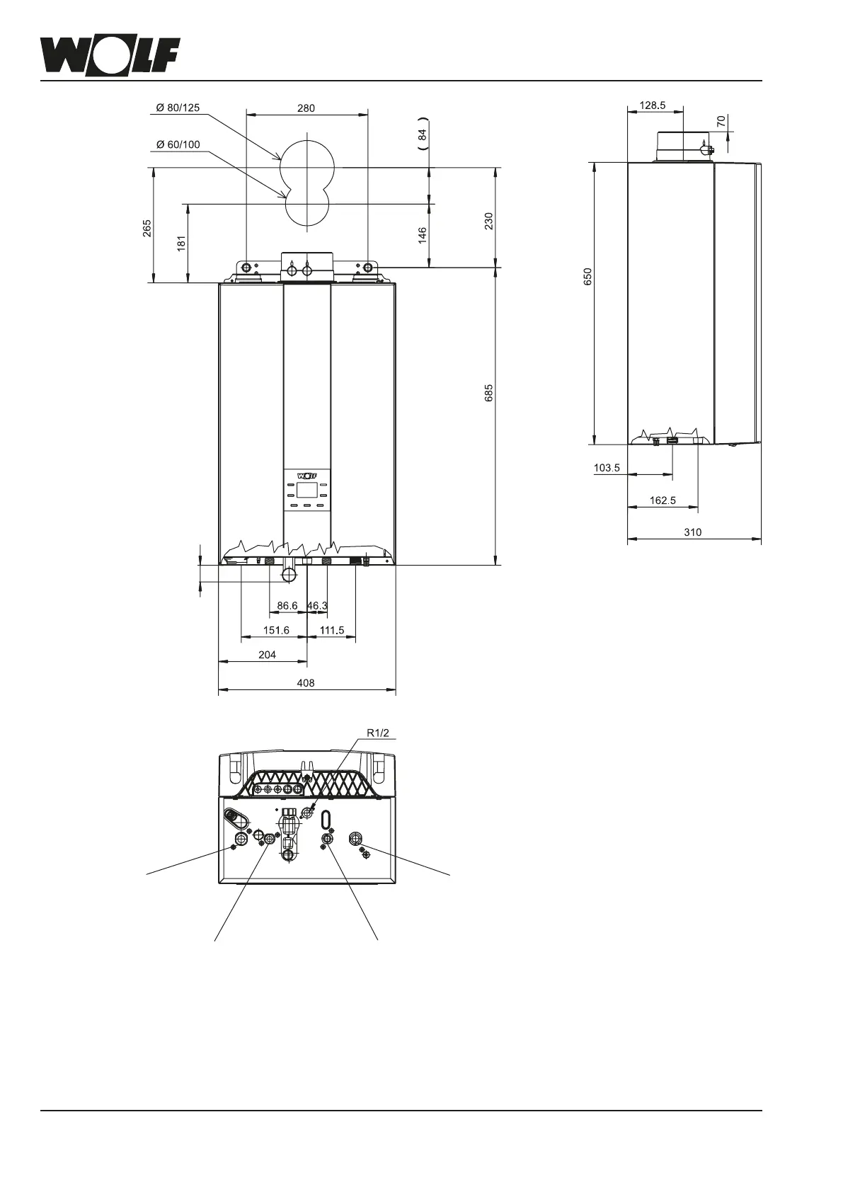
Cold water
connection
G 1/2
DHW connection
G 1/2
Heating ow
G 3/4
Heating return
G 3/4
38 at 28 kW
83 at 35 kW
3. Dimensions

Related product manuals