EasyManua.ls Logo

Wolf FGB-K-35 - Page 85

Wolf FGB-K-35
104 pages
Print Icon
To Next Page IconTo Next Page
To Next Page IconTo Next Page
To Previous Page IconTo Previous Page
To Previous Page IconTo Previous Page
Loading...
3064458_201811
85
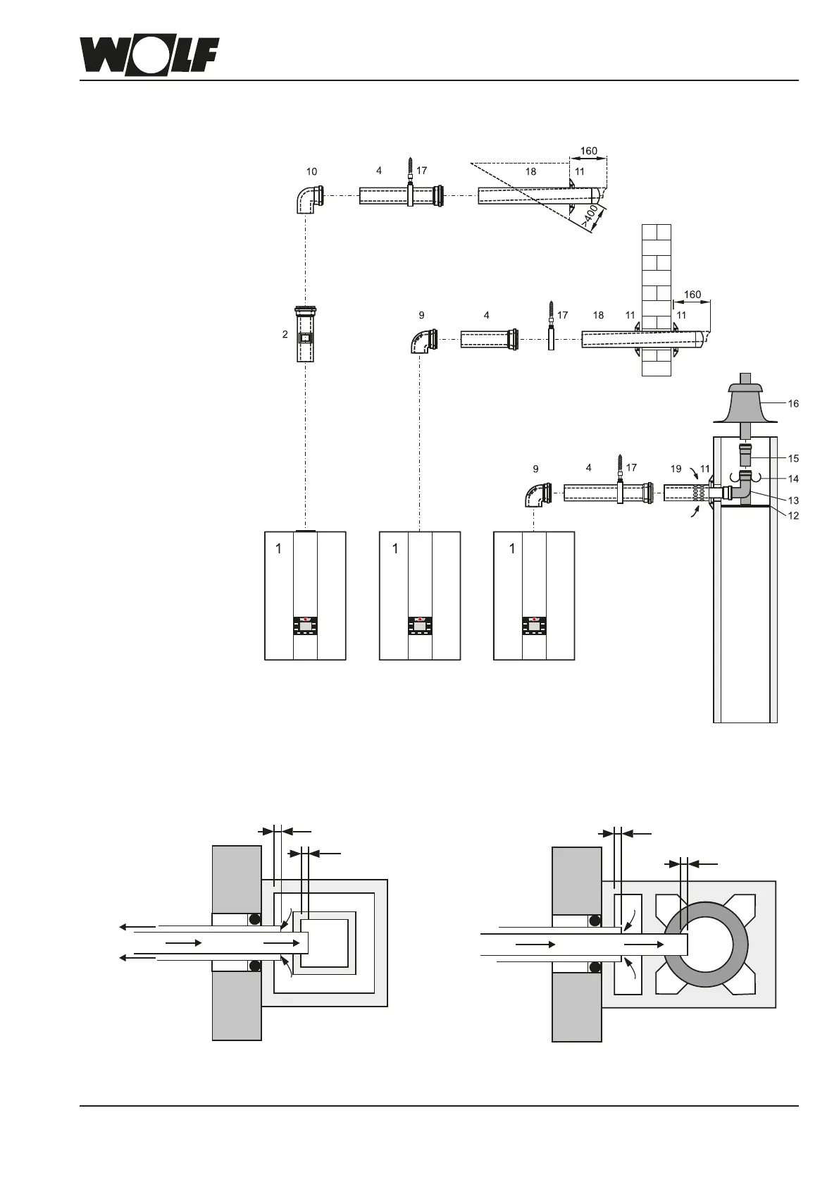
Connectiontoamoisture-resistantuesystemandbalanceduechimney
Plewa System
C43x
Schiedel System
C43x
10
10
10
10
1 Gas condensing boiler
2 Balanceduewith
inspection port
(250 mm long)
4 Balancedue
DN60/100
500 mm
1000 mm
2000 mm
9 Inspection bend
10 Bend 87 ° DN60/100
11 Pipe collar
12 Support rail
13 Support bend 87°
DN60 to DN80
14 Spacer
15 PPuepipeDN80
500 mm
1000 mm
2000 mm
16 Shaft cover with
UV resistant terminal
17 Spacer bracket
18 Balancedue
horizontal,
with wind protector
19 Connection to
uegaschimneyB33
length 250 mm
with air apertures
Horizontalbalancedue/connectiontobalanceduechimney(examples)systemDN60/100
C13x C13x B33
Dormer
31.Technicalinformation,balancedue

Related product manuals