EasyManua.ls Logo

Wolf IG15/S - Page 32

Wolf IG15/S
120 pages
Print Icon
To Next Page IconTo Next Page
To Next Page IconTo Next Page
To Previous Page IconTo Previous Page
To Previous Page IconTo Previous Page
Loading...
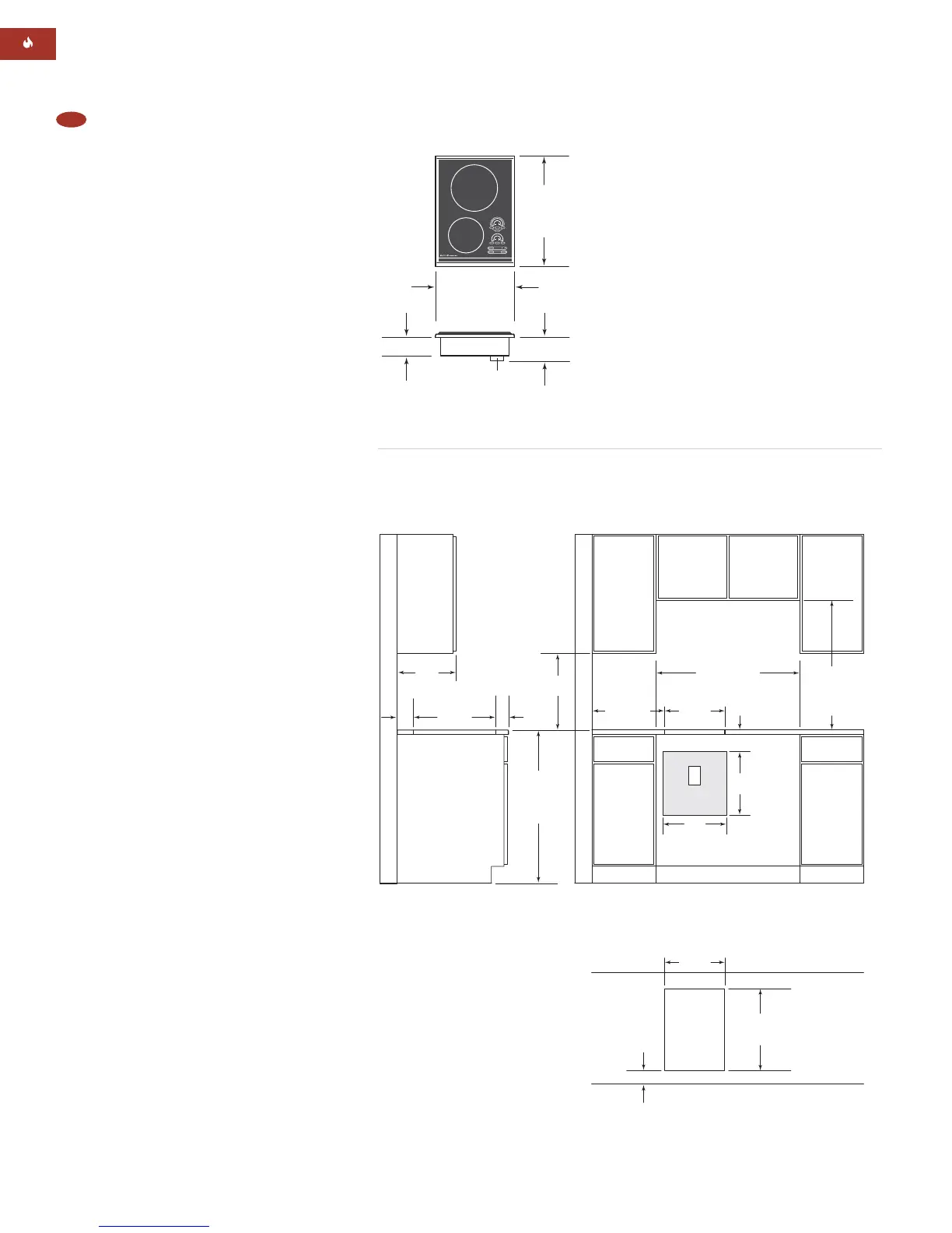
Dimensions in
parentheses are in
millimeters unless
otherwise specified.
WOLF INDUCTION COOKTOPS
32
E
4
1
/2" (114)
15"
(381)
15"
(381)
2"*min (51)
CUT-OUT TO
COMBUSTIBLE
MATERIALS
(BOTH SIDES)
13
3
/8" (340)
COOKTOP CUT-OUT
WIDTH
13
3
/8" (340)
COOKTOP CUT-OUT
WIDTH
33" (838)
RECOMMENDED
CABINET WIDTH
18"
(457)
NOTE: Application shown allows for installation of two 15" (381) modules side-by-side with 33" (838) recommended cabinet width. 18" (457)
recommended cabinet width for installation of single 15" (381) cooktop or module. *Minimum clearance from both side edges of cooktop cut-ou
t
to combustible materials up to 18" (457) above countertop. **Minimum clearance from rear edge of cooktop cut-out to combustible materials up
to 18" (457) above countertop.
19
1
/4" (489)
COOKTOP CUT-OUT
DEPTH
2
1
/2"min
(64)
36" (914)
STANDARD
FLOOR TO
COUNTERTOP
HEIGHT
13" max
(330)
30" (762)
COUNTERTOP TO
COMBUSTIBLE
MATERIALS
ABOVE COOKTOP
FRONT OF COUNTERTOP
2
1
/2"min
(64)
19
1
/4" (489)
COOKTOP
CUT-OUT DEPTH
2"**
(51)
21"
(533)
OVERALL
DEPTH
15" (381)
OVERALL WIDTH
3
1
/2" (89)
TERMINAL BOX
4
1
/2" (114)
OVERALL DIMENSIONS
New Model CT15I/S
INSTALLATION SPECIFICATIONS
New Model CT15I/S
Countertop Cut-Out Dimensions
SPECIFICATIONS
New Model CT15I/S
Trim Finish Classic
Overall Width 15" (381)
Overall Height 3
1
/2" (89)
Overall Depth 21" (533)
Induction Elements Two
Max Element Power (1) 1800 W with
3000 W boost,
(1) 1200 W
Cabinet Depth 22
3
/4" (578) min
Height Clearance 4
1
/2" (114) min
Cut-Out Width* 13
3
/8" (340)
Cut-Out Depth 19
1
/4" (489)
Electrical Supply 240/208 V AC, 50/60 Hz
20 amp circuit
Conduit 4' (1.2 m) flexible 3-wire
Electrical Rating 3.6 kW at 240 V
3.1 kW at 208 V
Shipping Weight 30 lbs (14 kg)
*If the 15" (381) cooktop is to be used with
any combination of additional cooktop units or
modules with a filler strip, the cut-out width
increases to 14" (356).
The diameter of the induction elements are
8
3
/
4
" (220) and 6
3
/
4
" (171).
IMPORTANT NOTE: A minimum height clearance
of 6" (152) is required between countertop and
any combustible surface directly below the
cooktop.
IMPORTANT NOTE: If a shelf is installed below
the cooktop, a 1" (25) gap at the rear of the
cabinet shelf is necessary to allow for proper
ventilation. Failure to do so could result in
decreased performance or product damage.
Unit dimensions may vary to ±
1
/
8
" (3).
Available October 2007
NEW

Related product manuals