EasyManua.ls Logo

Wolf IG15/S - Recommended Cabinet Width

Wolf IG15/S
120 pages
Print Icon
To Next Page IconTo Next Page
To Next Page IconTo Next Page
To Previous Page IconTo Previous Page
To Previous Page IconTo Previous Page
Loading...
WOLF ELECTRIC COOKTOPS
43
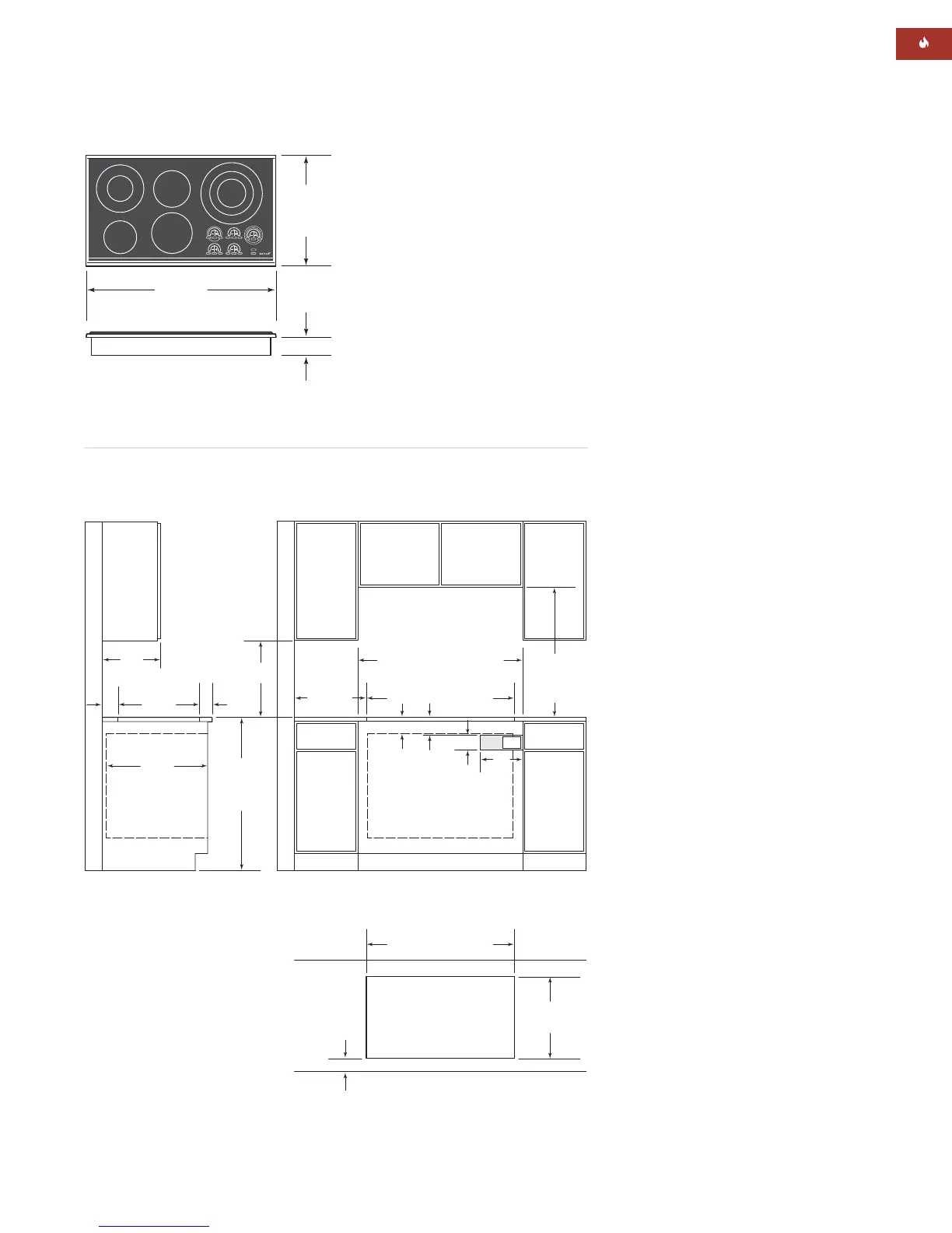
2"*min (51)
CUT-OUT TO
COMBUSTIBLE
MATERIALS
(BOTH SIDES)
18"
(457)
19
1
/4" (489)
COOKTOP CUT-OUT
DEPTH
2
1
/2"min
(64)
36" (914)
STANDARD
FLOOR TO
COUNTERTOP
HEIGHT
13" max
(330)
30" (762)
COUNTERTOP TO
COMBUSTIBLE
MATERIALS
ABOVE COOKTOP
24"min
(610)
*Minimum clearance from both side edges of cooktop cut-out to combustible materials up to 18" (457) above countertop. **Minimum clearance from
rear edge of cooktop cut-out to combustible materials up to 18" (457) above countertop.
34
3
/8" (873)
COOKTOP CUT-OUT WIDTH
34
3
/8" (873)
COOKTOP CUT-OUT WIDTH
39" (991)
RECOMMENDED CABINET WIDTH
36"min (914)
4" (102)
10"
(254)
3
1
/2" (89)
36-INCH OVEN OPENING
3
3
/4"min (95)
E
2
1
/2"min
(64)
FRONT OF COUNTERTOP
19
1
/4" (489)
COOKTOP
CUT-OUT DEPTH
2"**
(51)
21"
(533)
OVERALL
DEPTH
36" (914)
OVERALL WIDTH
3
1
/2" (89)
21"
(533)
OVERALL
DEPTH
36" (914)
OVERALL WIDTH
3
1
/2" (89)
OVERALL DIMENSIONS
Model CT36E
INSTALLATION SPECIFICATIONS
36" (914) Framed Electric Cooktop
Countertop Cut-Out Dimensions
SPECIFICATIONS
Model CT36E
Overall Width 36" (914)
Overall Height 3
1
/2" (89)
Overall Depth 21" (533)
Heating Elements Five
Temperature Zones Eight
Max Element Power 1050 W/2200 W /
(triple) 2700 W
Max Element Power 750 W/2200 W
(dual)
Max Element Power 1200 W, 1500 W
(three single) and 1800 W
Cabinet Width 39" (991) rec
36" (914) min
Cabinet Depth 22
3
/4" (578) min
Height Clearance 4" (102) min
Cut-Out Width* 34
3
/8" (873)
Cut-Out Depth 19
1
/4" (489)
Electrical Supply 240 V AC/ 60 Hz / 50 amp
208 V AC/ 60 Hz / 40 amp
Conduit 4' (1.2 m) flexible 3-wire
Electrical Rating 9.4 kW at 240 V
7.1 kW at 208 V
Shipping Weight 60 lbs (27 kg)
*If the 36" (914) cooktop is to be used with
any combination of additional cooktop units or
modules with a filler strip, the cut-out width
increases to 35" (889).
The outer diameter of the heating elements are
11
7
/
8
" (302), 9
1
/
8
" (232), 7
7
/
8
" (200), 7
1
/
8
" (181)
and 6
1
/
2
" (165).
INSTALLATION OPTIONS
A Wolf 36" (914) L Series single oven may be
installed below the 36" (914) framed electric
cooktop. For this installation, unless you are
using cabinets deeper than 24" (610), it is
recommended that the electrical supply be
placed in the base cabinet to the right of the
oven. A 30" (762) L Series or E Series single
oven may also be installed below the 36"
(914) framed electric cooktop. Refer to the
built-in ovens section for additional specifica-
tions.
When a 36" (914) L Series oven is installed
below a cooktop, it is recommended that the
rough opening for the oven be 7
3
/4" (197)
from the floor to ease use of the oven door.
Unit dimensions may vary to ±
1
/
8
" (3).
MODEL OPTIONS
36" (914) Framed Electric Cooktop
Classic Trim Finish CT36E/S
Platinum Trim Finish CT36E/P
Carbon Trim Finish CT36E/B
Discontinued November 2007
Refer to installation
instructions shipped
with each Wolf
product for detailed
specifications.

Other manuals for Wolf IG15/S

Related product manuals