EasyManua.ls Logo

Wolf IG15/S - Opening Width 25 1; 4

Wolf IG15/S
120 pages
Print Icon
To Next Page IconTo Next Page
To Next Page IconTo Next Page
To Previous Page IconTo Previous Page
To Previous Page IconTo Previous Page
Loading...
Dimensions in
parentheses are in
millimeters unless
otherwise specified.
WOLF SEALED BURNER RANGETOPS
74
MODEL OPTIONS
30" (762) Sealed Burner
Rangetops
Four Surface
Burners SRT304
Natural gas model listed;
for LP gas add (-LP) to the
model number.
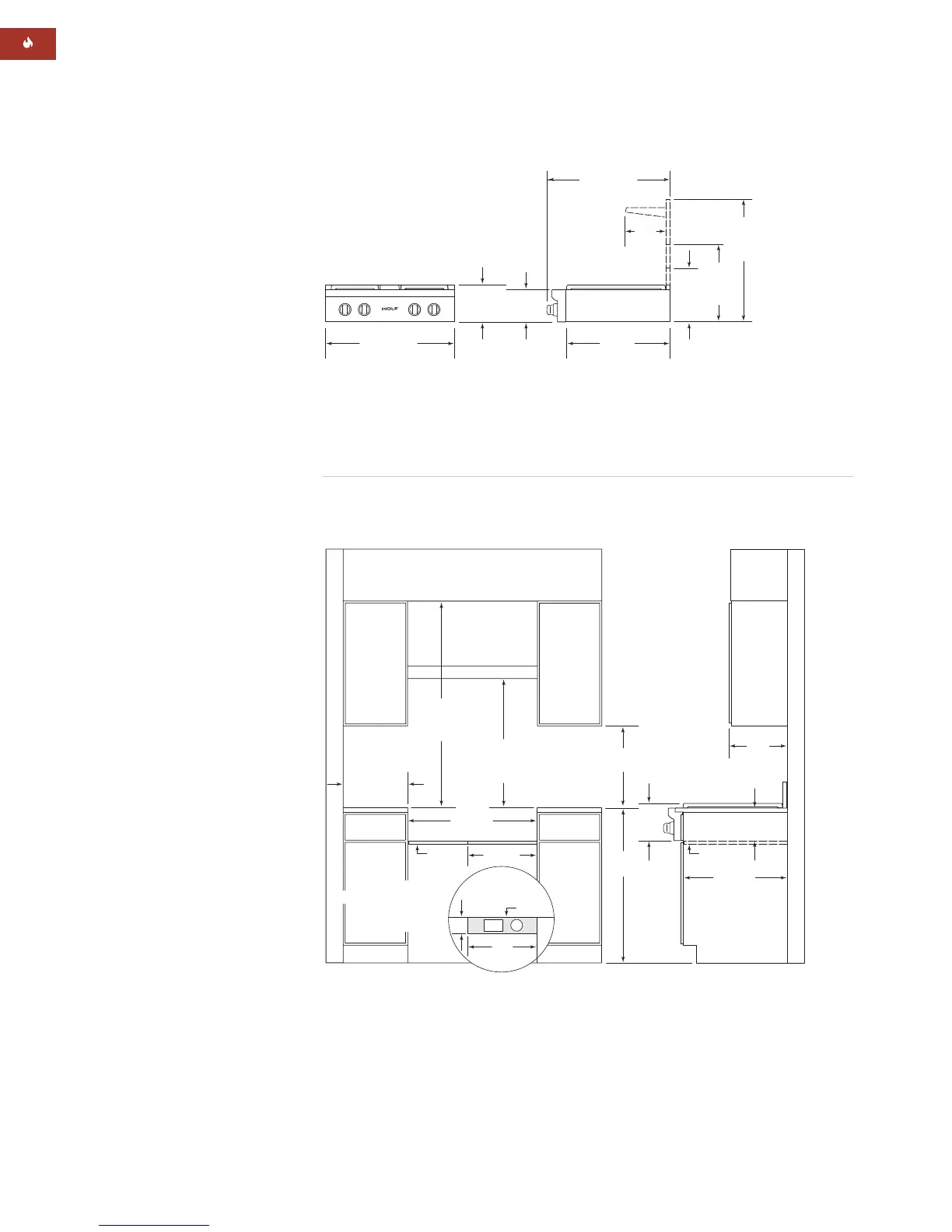
VENTILATION
HOOD
30" (762)
OPENING WIDTH
30"min (762)
TO
36"max (914)
TO BOTTOM OF
VENTILATION HOOD
30"min (762)
COUNTERTOP
TO COMBUSTIBLE
MATERIALS
3
/4" (19)
PLATFORM
TOP VIEW
OF PLATFORM
E
G
16"
(406)
16" (406)
4" (102)
BACK
WALL
ISLAND INSTALLATIONS: 12" (305) MINIMUM
CLEARANCE FROM BACK OF RANGETOP TO
COMBUSTIBLE REAR WALL ABOVE COUNTERTOP
0" (0) TO NON-COMBUSTIBLE MATERIALS
LOCATION OF GAS AND
ELECTRICAL SUPPLY CUT-OUT
WITHIN SHADED AREA
THROUGH BOTTOM OF
PLATFORM
36"
(914)
18"min (457)
TO COUNTERTOP
3
/4" (19)
PLATFORM
8
1
/2"
(216)
COOKING
SURFACE
7
1
/2"
(191)
24" (610)
13" max
(330)
6"min (152)
TO
COMBUSTIBLE
MATERIALS
(BOTH SIDES)
29
7
/8" (759)
OVERALL WIDTH
24
1
/4"
(616)
12
1
/2"
(318)
WITH 5"
RISER
17
1
/2"
(445)
WITH 10"
RISER
27
1
/2"
(699)
WITH 20"
RISER
28
1
/2" (724)
OVERALL DEPTH
8
1
/2" (216)
OVERALL
HEIGHT
COOKING
SURFACE
7
1
/2"
(191)
9
1
/4"
(235)
INSTALLATION SPECIFICATIONS
30" (762) Sealed Burner Rangetop
OVERALL DIMENSIONS
30" (762) Sealed Burner Rangetop
Unit dimensions may vary to ±
1
/
8
" (3).
SPECIFICATIONS
30" (762) Sealed Burner Rangetop
Overall Width 29
7
/8" (759)
Overall Height
(to cooking surface) 8
1
/2" (216)
Overall Depth 28
1
/2" (724)
Opening Width 30" (762)
Opening Height 7
1
/2" (191)
(platform to countertop)
Opening Depth 24" (1219)
Electrical Supply 110/120 V AC
50/60 Hz
15 amp circuit
Power Cord 6' (1.8 m) 3-prong
Shipping Weight 160 lbs (73 kg)

Other manuals for Wolf IG15/S

Related product manuals