EasyManua.ls Logo

Wolf IG15/S - Standard Microwave (Freestanding); Model MW24; Overall Height 13 3; 8; Electrical Supply

Wolf IG15/S
120 pages
Print Icon
To Next Page IconTo Next Page
To Next Page IconTo Next Page
To Previous Page IconTo Previous Page
To Previous Page IconTo Previous Page
Loading...
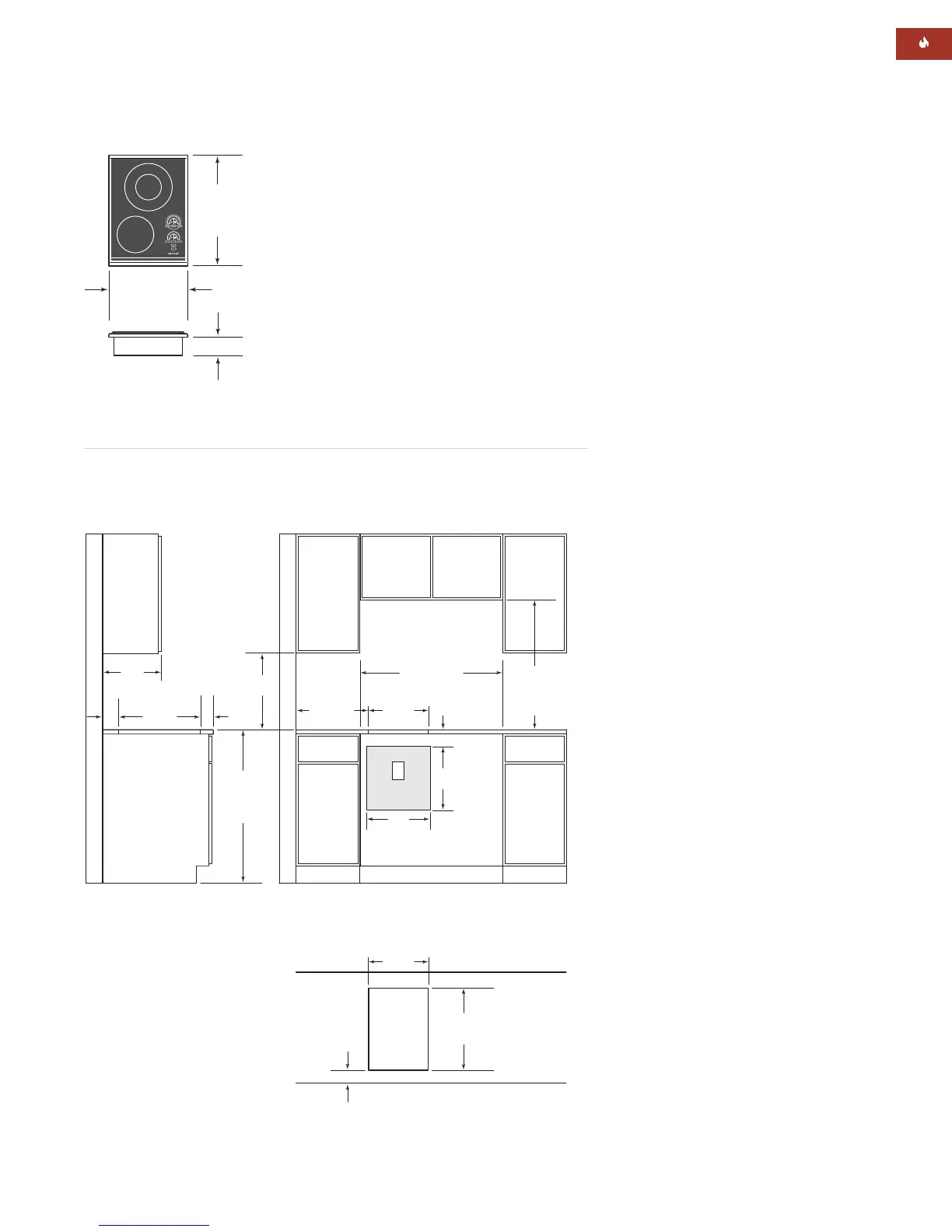
WOLF ELECTRIC COOKTOPS
41
E
4" (102)
15"
(381)
15"
(381)
2"*min (51)
CUT-OUT TO
COMBUSTIBLE
MATERIALS
(BOTH SIDES)
13
3
/8" (340)
COOKTOP CUT-OUT
WIDTH
13
3
/8" (340)
COOKTOP CUT-OUT
WIDTH
33" (838)
RECOMMENDED
CABINET WIDTH
18"
(457)
NOTE: Application shown allows for installation of two 15" (381) modules side-by-side with 33" (838) recommended cabinet width. 18" (457)
recommended cabinet width for installation of single 15" (381) cooktop or module. *Minimum clearance from both side edges of cooktop cut-ou
to combustible materials up to 18" (457) above countertop. **Minimum clearance from rear edge of cooktop cut-out to combustible materials up
to 18" (457) above countertop.
19
1
/4" (489)
COOKTOP CUT-OUT
DEPTH
2
1
/2"min
(64)
36" (914)
STANDARD
FLOOR TO
COUNTERTOP
HEIGHT
13" max
(330)
30" (762)
COUNTERTOP TO
COMBUSTIBLE
MATERIALS
ABOVE COOKTOP
FRONT OF COUNTERTOP
2
1
/2"min
(64)
19
1
/4" (489)
COOKTOP
CUT-OUT DEPTH
2"**
(51)
21"
(533)
OVERALL
DEPTH
15" (381)
OVERALL WIDTH
3
1
/2" (89)
OVERALL DIMENSIONS
Model CT15E/S
INSTALLATION SPECIFICATIONS
Model CT15E/S
Countertop Cut-Out Dimensions
SPECIFICATIONS
Model CT15E/S
Trim Finish Classic
Overall Width 15" (381)
Overall Height 3
1
/2" (89)
Overall Depth 21" (533)
Heating Elements Two
Temperature Zones Three
Max Element Power 750 W/2200 W
(dual)
Max Element Power 1200 W
(single)
Cabinet Depth 22
3
/4" (578) min
Height Clearance 4" (102) min
Cut-Out Width* 13
3
/8" (340)
Cut-Out Depth 19
1
/4" (489)
Electrical Supply 240/208 V AC, 60 Hz
15 amp circuit
Conduit 4' (1.2 m) flexible 3-wire
Electrical Rating 3.4 kW at 240 V
2.6 kW at 208 V
Shipping Weight 30 lbs (14 kg)
*If the 15" (381) cooktop is to be used with
any combination of additional cooktop units or
modules with a filler strip, the cut-out width
increases to 14" (356).
The outer diameter of the heating elements are
9" (229) and 6
1
/
2
" (165).
Unit dimensions may vary to ±
1
/
8
" (3).
Refer to installation
instructions shipped
with each Wolf
product for detailed
specifications.
Discontinued November 2007

Other manuals for Wolf IG15/S

Related product manuals